Negozio in affitto - Rue Du Bourg 2, 3960 Sierre
Perché amerai questa proprietà
Posizione luminosa
Ampio spazio di stoccaggio
Porte d'ingresso automatiche
Organizza una visita
Prenota una visita con maison.work oggi!
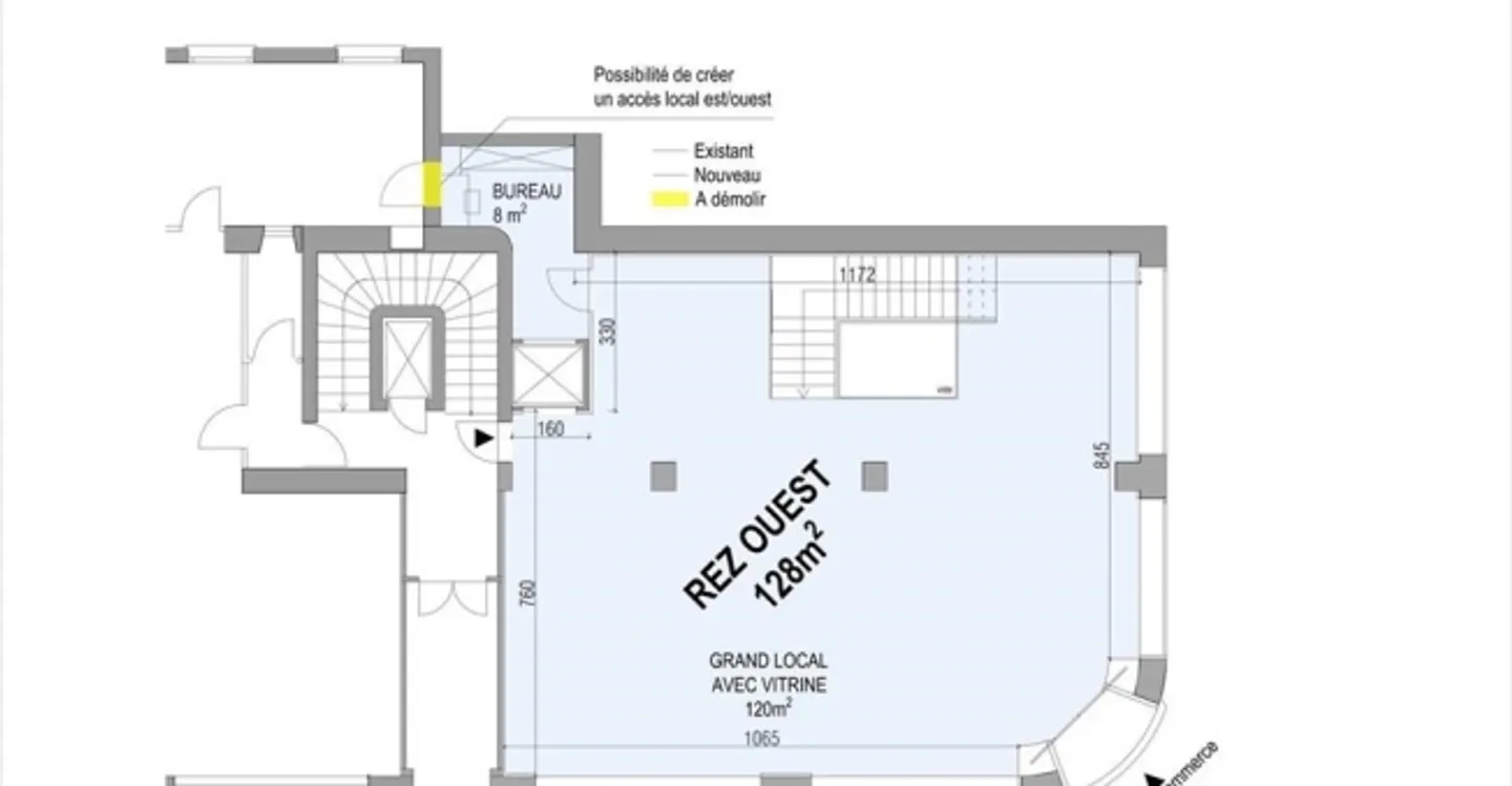
IN AFFITTO a Sierre? SPAZIO COMMERCIALE DI CARATTERE SU 2 PIANI + SOTTERRANEO
Situato all'angolo di un edificio in Rue du Bourg, questo spazio luminoso e attraversato beneficia di vetrine nuove su due facciate, garantendo una visibilità ottimale su un asse molto trafficato, a pochi passi dalla stazione di Sierre.
Caratteristiche dell'oggetto:
? 2 piani di 128 m² ciascuno (totale: 256 m²)
? Ampio seminterrato di 170 m² (magazzino, archivi, laboratori, ecc.)
? Grande visibilità grazie alle vetrine...
Dettagli immobile
- Disponibile dal
- Su accordo
- Superficie abitabile
- 414 m²
- Superficie utilizzabile
- 414 m²



