Spazio ufficio in affitto - Route Du Mont-Carmel 2, 1762 Givisiez
Perché amerai questa proprietà
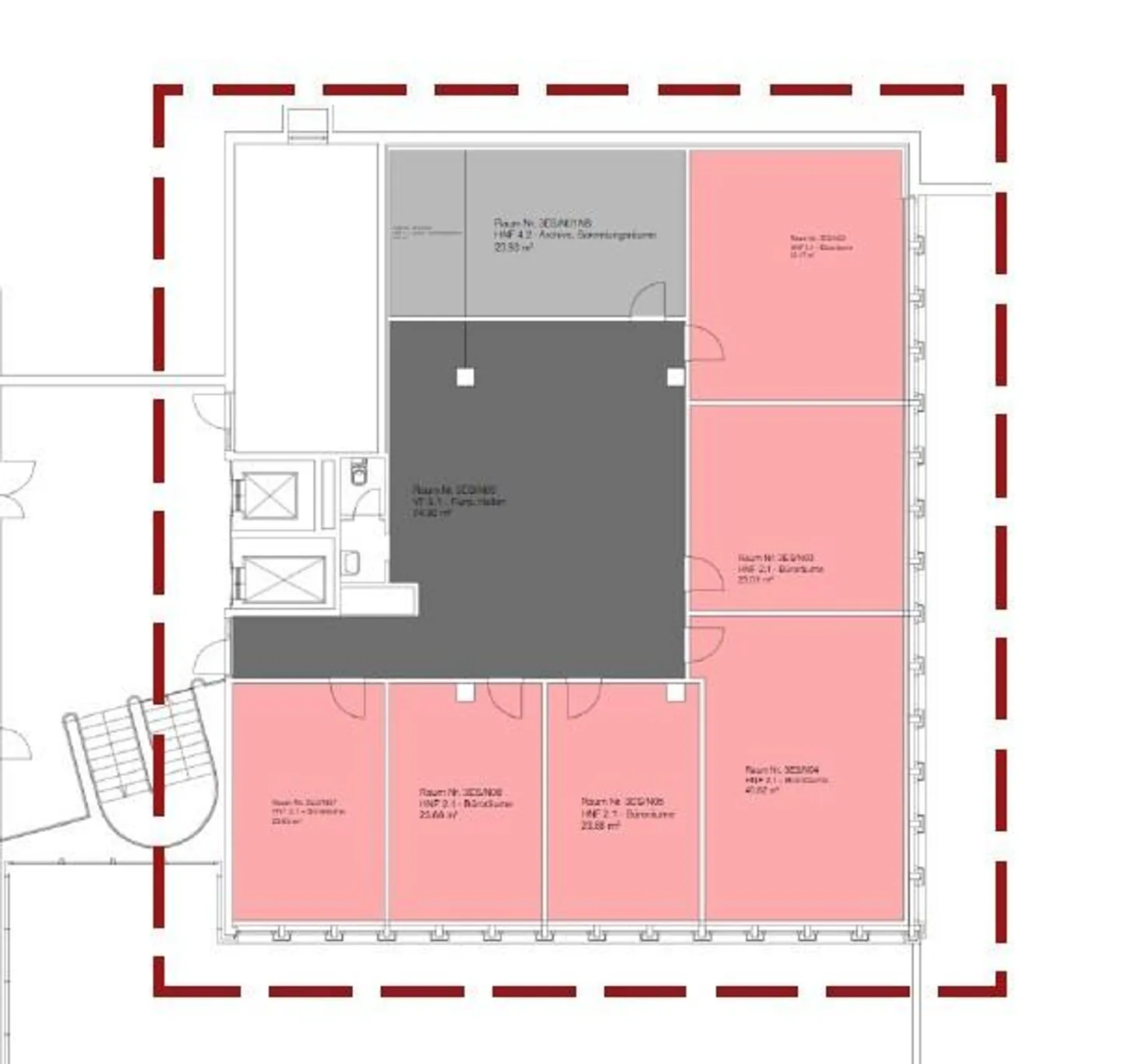
Layout ufficio flessibile
Accesso ascensore disponibile
Servizio di portineria incluso
Organizza una visita
Prenota una visita con Adeline oggi!
Posizione
Situato in un edificio moderno, vicino agli accessi stradali, apprezzerete la posizione degli uffici.
Grazie alla sua posizione attraente, vicino all'uscita dell'autostrada Fribourg-Sud e a 10 minuti di auto dalla stazione ferroviaria di Fribourg, le piccole imprese e i fornitori di servizi trovano rapidamente un mercato. L'offerta è varia e comprende uffici attraenti e flessibili o studi professionali.
Descrizione dello spazio commerciale
Grazie alla suddivisione dello spazio di circ...
Ripartizione dei costi
- Affitto netto
- CHF 5’140
- Costi aggiuntivi
- CHF 340
- Totale delle locazioni
- CHF 5’140
Dettagli immobile
- Disponibile dal
- Su accordo
- Superficie terreno
- 310 m²



