1 / 7

Commerciale in affitto - Route Des Grives 2, 1763 Granges-Paccot

Prezzo su richiesta
-

Perché amerai questa proprietà

Spazio di 450 m2 personalizzabile

Accesso ottimale all'autostrada

Parcheggio esterno disponibile

Organizza una visita

Prenota una visita oggi!

BNIMMOVEVE
Questa descrizione è stata tradotta automaticamente da Francese.

Commercio

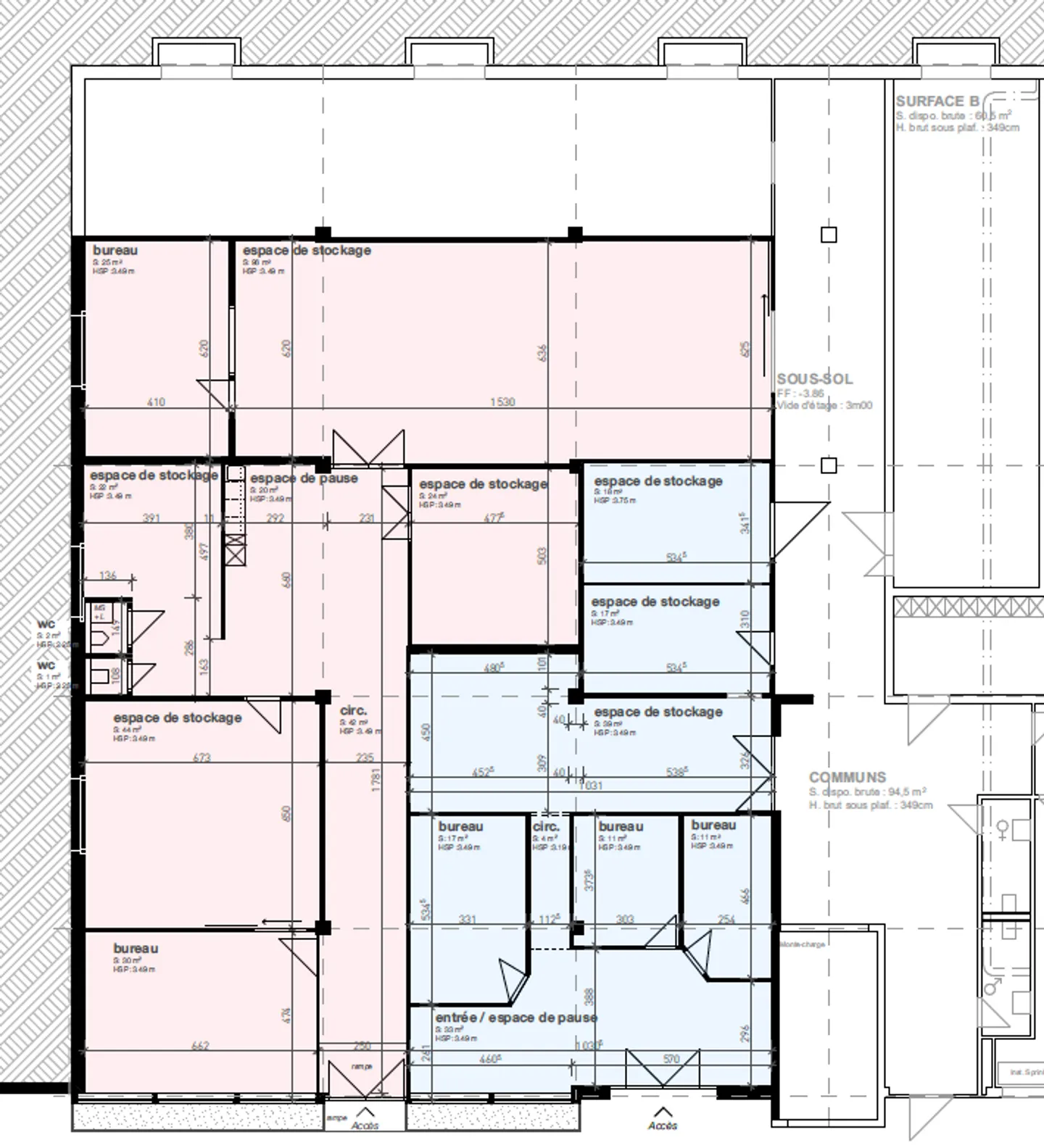
Superfici commerciali di 450 m2 a Grange-Paccots

Superficie totale di circa 450 m2 (divisibili secondo le vostre esigenze)

_Blu: circa 150 m2 / Rosso: circa 300 m2_

Descrizione

Situato in una zona industriale, questo spazio commerciale al piano terra è ideale per qualsiasi tipo di attività. I locali sono completamente modulari e possono essere suddivisi per soddisfare le vostre esigenze specifiche.

Accessibilità

Godete di un'accessibilità ottimale grazie all'accesso all'autostrada A1.

Servizi

Sono dispo...

Dettagli immobile

Disponibile dal
Su accordo

Agenzia

BNIMMOVEVE
Online da
24/09/2025
28 giorni fa

Località

Route Des Grives 2, 1763 Granges-Paccot

Fonti