Commerciale in affitto - Route De Cité-Ouest 2, 1196 Gland
Perché amerai questa proprietà
Ampia area open space
Lounge con cucina attrezzata
Parcheggio privato disponibile
Organizza una visita
Prenota una visita oggi!
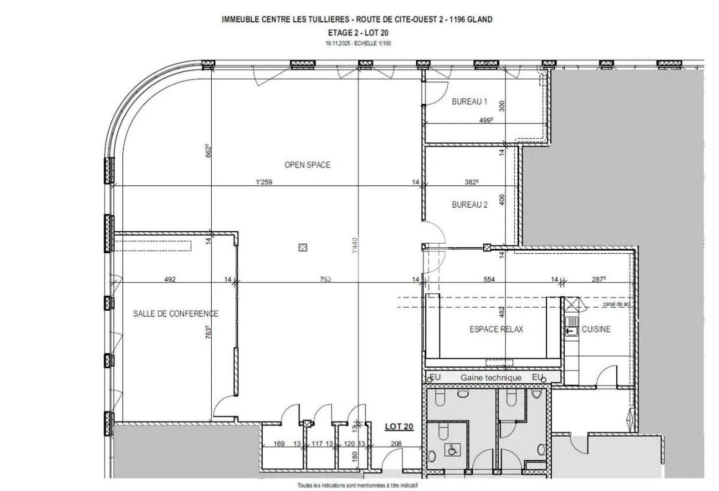
Centro Les Tuillières - Superficie luminosa di circa 283m2 modulabili al 2° piano
Edificio commerciale idealmente situato a Gland, in prossimità immediata delle autostrade, dei negozi e dei mezzi pubblici.
Superficie di circa 283 m² modulabili al 2° piano (2,70m di altezza) con aria condizionata attualmente comprendente:
- un ampio open space
- una sala conferenze
- due uffici
- tre piccole cabine di riunione
- una piacevole sala relax con cucina completamente attrezzata
- un locale tecnico
Aree comuni: WC M/F e per disabili allo stesso piano, così come un bagno. Un montacarichi è ...
Ripartizione dei costi
- Affitto netto
- CHF 6’805
- Costi aggiuntivi
- CHF 675
- Totale delle locazioni
- CHF 6’805
Dettagli immobile
- Disponibile dal
- 31.03.2026
- Stanze
- 4
- Superficie abitabile
- 283 m²
- Superficie utilizzabile
- 283 m²



