Spazio ufficio in affitto - Kottenstrasse 2, 6210 Sursee
Perché amerai questa proprietà
Layout delle stanze flessibile
Alta affluenza di clienti
Ottimo accesso ai mezzi pubblici
Organizza una visita
Prenota una visita oggi!
Ispiratore e rappresentativo - il tuo spazio espositivo
Spazio commerciale versatile in una posizione centrale a Sursee
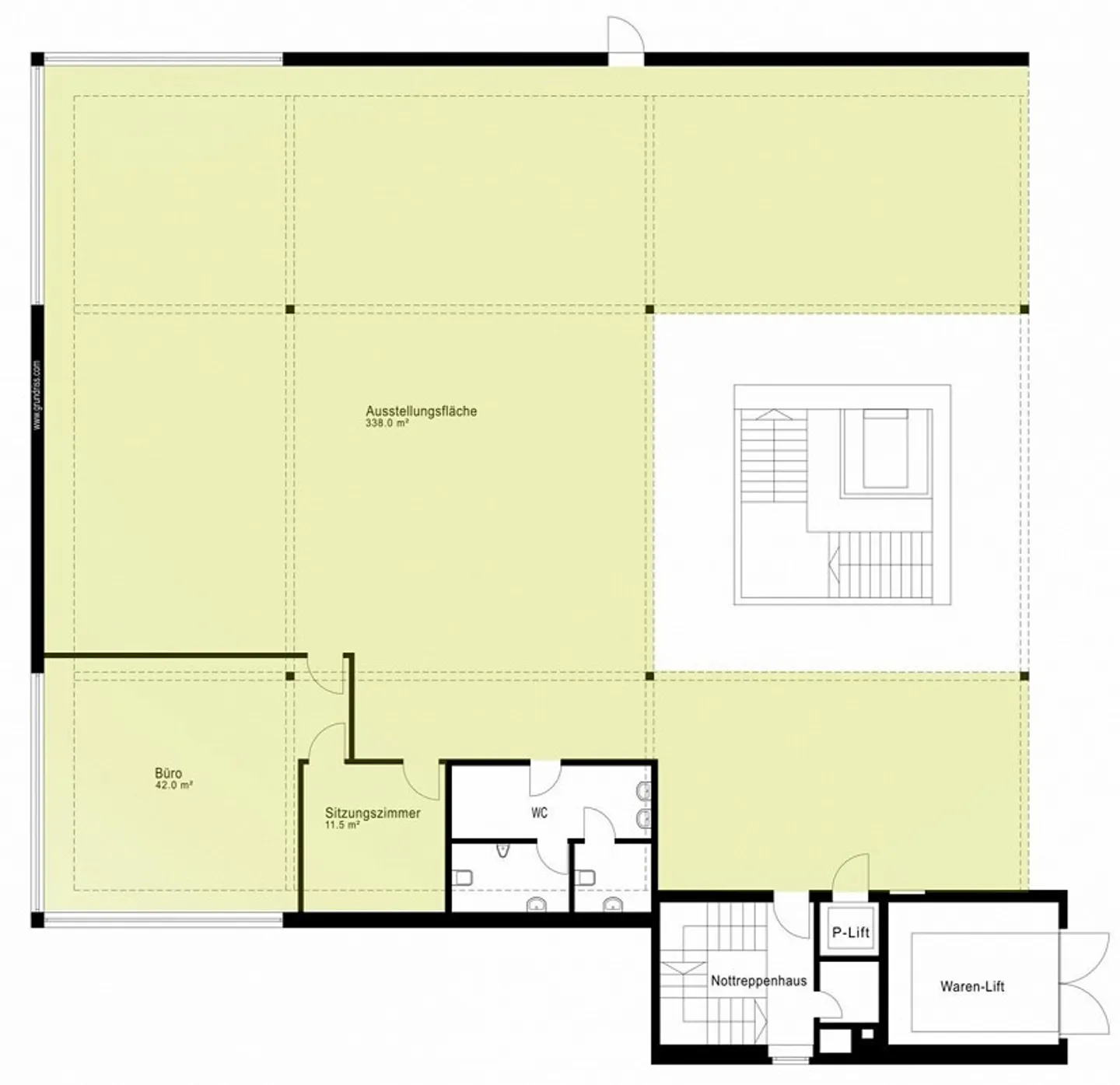
Questa superficie di circa 388 m² al 4° piano del negozio di mobili Ulrich offre condizioni ideali per la tua attività. Che sia come showroom, studio o area di servizio - qui troverai spazio per le tue idee in un ambiente vivace con un'alta frequenza di clienti.
Questo spazio in affitto ti offre:
- Circa 388 m² su un piano
- Ascensore per persone e merci per un accesso confortevole
- Impianto di ventilazione disponibile
- Stanze divisibil...
Dettagli immobile
- Disponibile dal
- Su accordo



