Spazio ufficio in affitto - Jöchlerweg 2, 6340 Baar
Perché amerai questa proprietà
Design interno personalizzabile
Soffitti spaziosi di 3m
Ottimi collegamenti di trasporto
Organizza una visita
Prenota una visita con Andreas oggi!
La tua nuova sede aziendale a Baar - Decidi tu stesso l'allestimento interno!
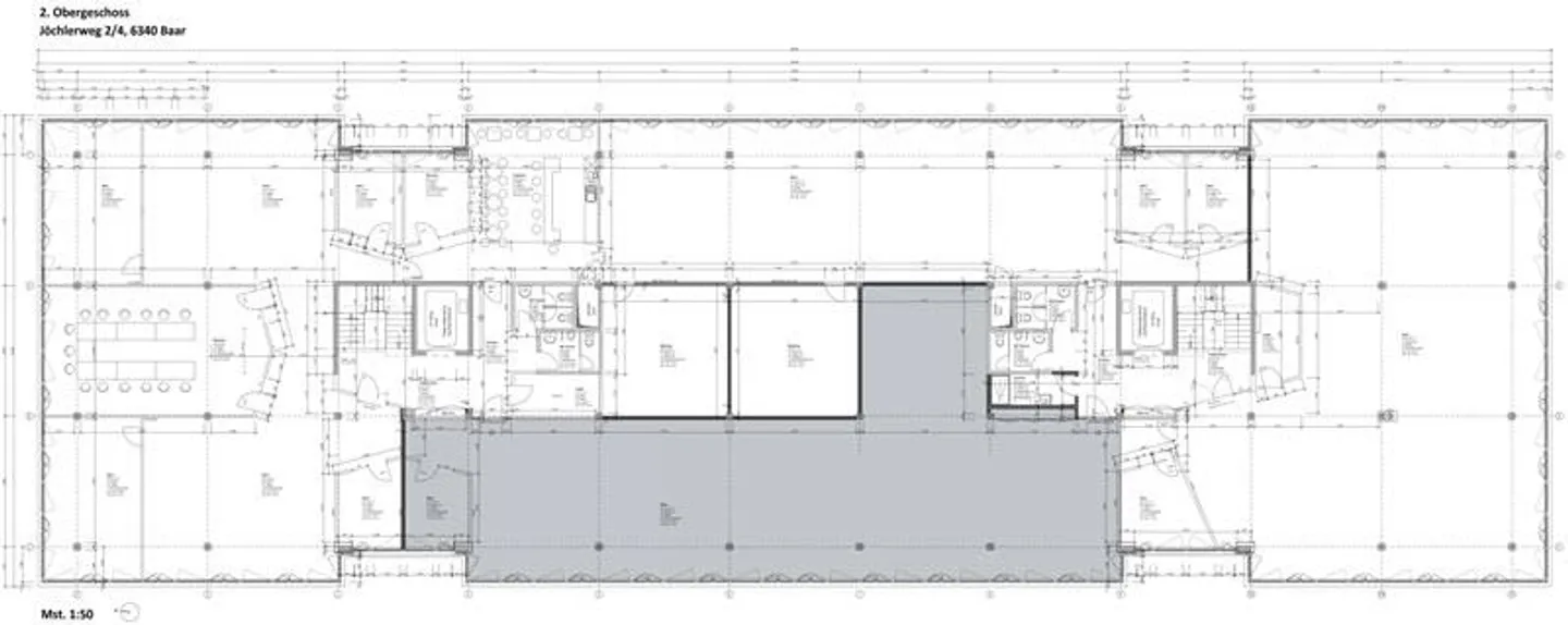
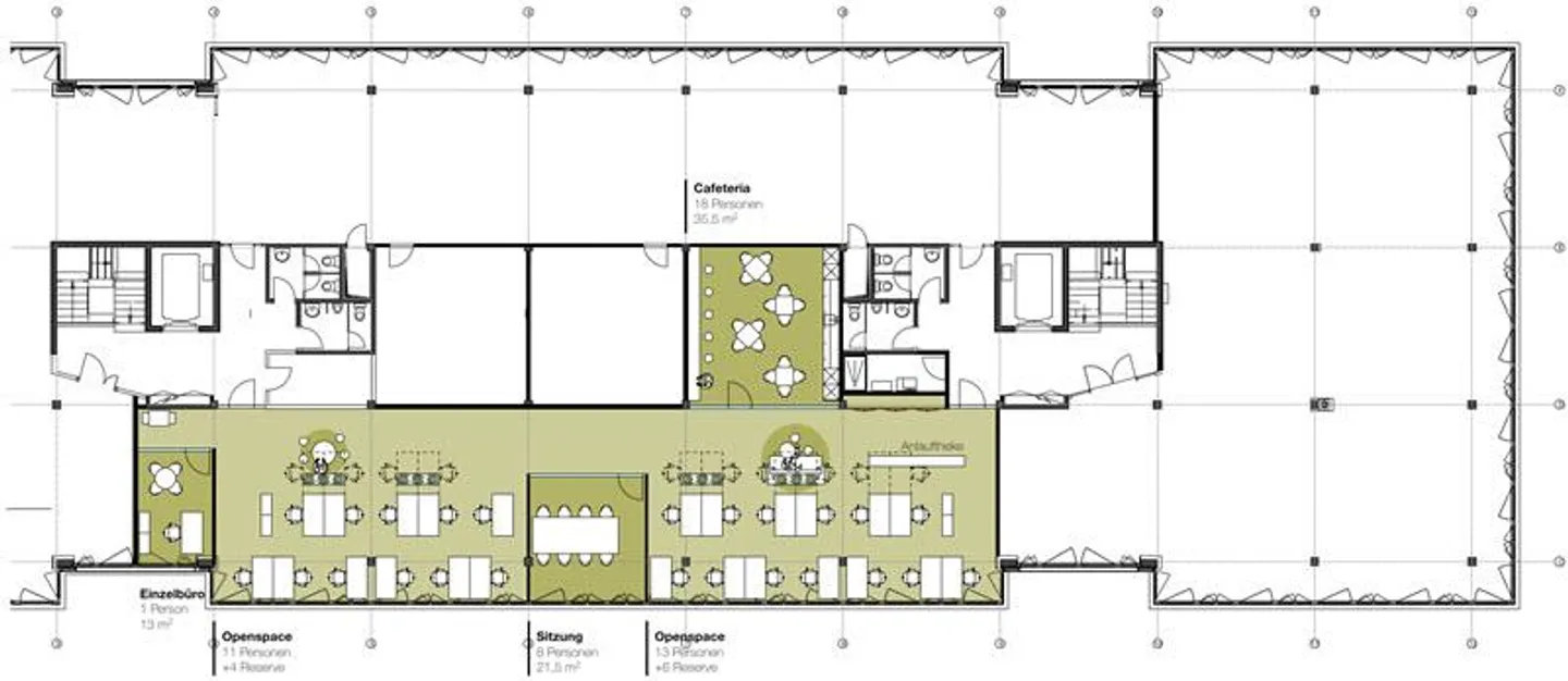
In Jöchlerweg 2 a Baar, è disponibile per l'affitto uno spazio ufficio di 283m² al 2° piano.
L'allestimento esistente come ufficio aperto consente di progettare l'interno in modo flessibile con nuovi pavimenti, ulteriori suddivisioni degli spazi o l'installazione di una cucina - secondo le tue idee.
Le generose altezze dei locali di 3 metri, unite agli ambienti luminosi, creano un ambiente di lavoro aperto e ispiratore. L'area in affitto è accessibile tramite una scala, che dispone di un ascensore...
Dettagli immobile
- Disponibile dal
- Su accordo
- Anno di costruzione
- 1994



