Spazio ufficio in affitto - Jöchlerweg 2, 6340 Baar
Perché amerai questa proprietà
Design interno personalizzabile
Stanze spaziose e luminose
Ottimo accesso ai trasporti
Organizza una visita
Prenota una visita con Andreas oggi!
Spazi per uffici attraenti per la tua azienda - Possibile design interno flessibile!
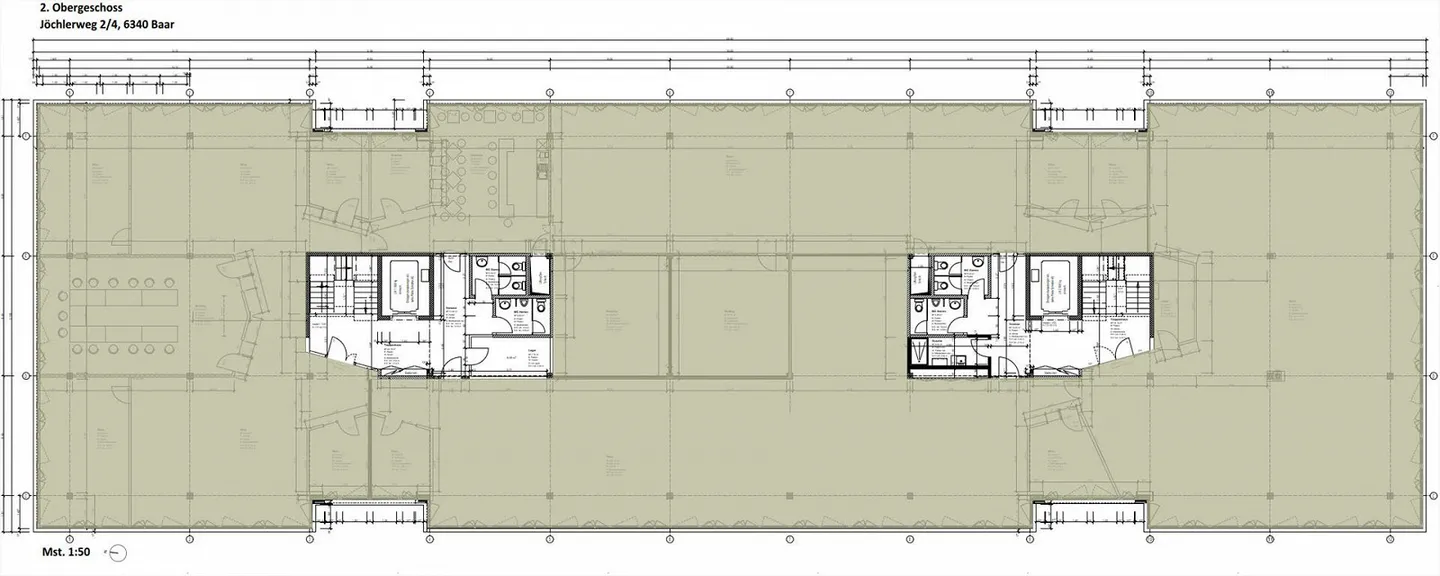
In Jöchlerweg 2 a Baar, è disponibile per l'affitto uno spazio ufficio di 1.296 m² al 2° piano.
L'attuale layout come ufficio aperto consente una progettazione interna completamente flessibile con nuovi pavimenti e suddivisioni degli spazi - secondo le tue idee.
Le generose altezze dei locali di 3 metri, unite agli ambienti luminosi, creano un ambiente di lavoro aperto e ispiratore. L'area in affitto è accessibile tramite due scale, ciascuna dotata di un ascensore per passeggeri/merci.
L'ingress...
Dettagli immobile
- Disponibile dal
- 01.01.2026
- Anno di costruzione
- 1994
- Superficie abitabile
- 1296 m²
- Superficie utilizzabile
- 1296 m²



