Spazio ufficio in affitto - Jöchlerweg 2, 6340 Baar
Perché amerai questa proprietà
Design interno personalizzabile
Altezza soffitti di 3m
Ottimo accesso ai trasporti
Organizza una visita
Prenota una visita con Andreas oggi!
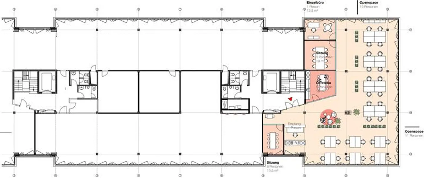
Ufficio flessibile per team flessibili - personalizza il tuo interno!
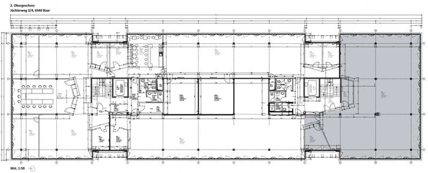
In Jöchlerweg 2 a Baar, è disponibile un'area ufficio di 326 m² in affitto al 2° piano.
L'attuale layout come ufficio aperto consente di personalizzare l'interno con nuovi pavimenti, ulteriori suddivisioni degli spazi o l'installazione di una cucina - secondo le tue idee.
Le generose altezze dei locali di 3 metri, unite agli ambienti luminosi, creano un ambiente di lavoro aperto e ispiratore. L'area in affitto è accessibile tramite una scala, che dispone di un ascensore per passeggeri/merci.
L'ingr...
Dettagli immobile
- Disponibile dal
- Su accordo
- Anno di costruzione
- 1994



