Commerciale in affitto - Grumetweg 2, 5507 Mellingen
Perché amerai questa proprietà
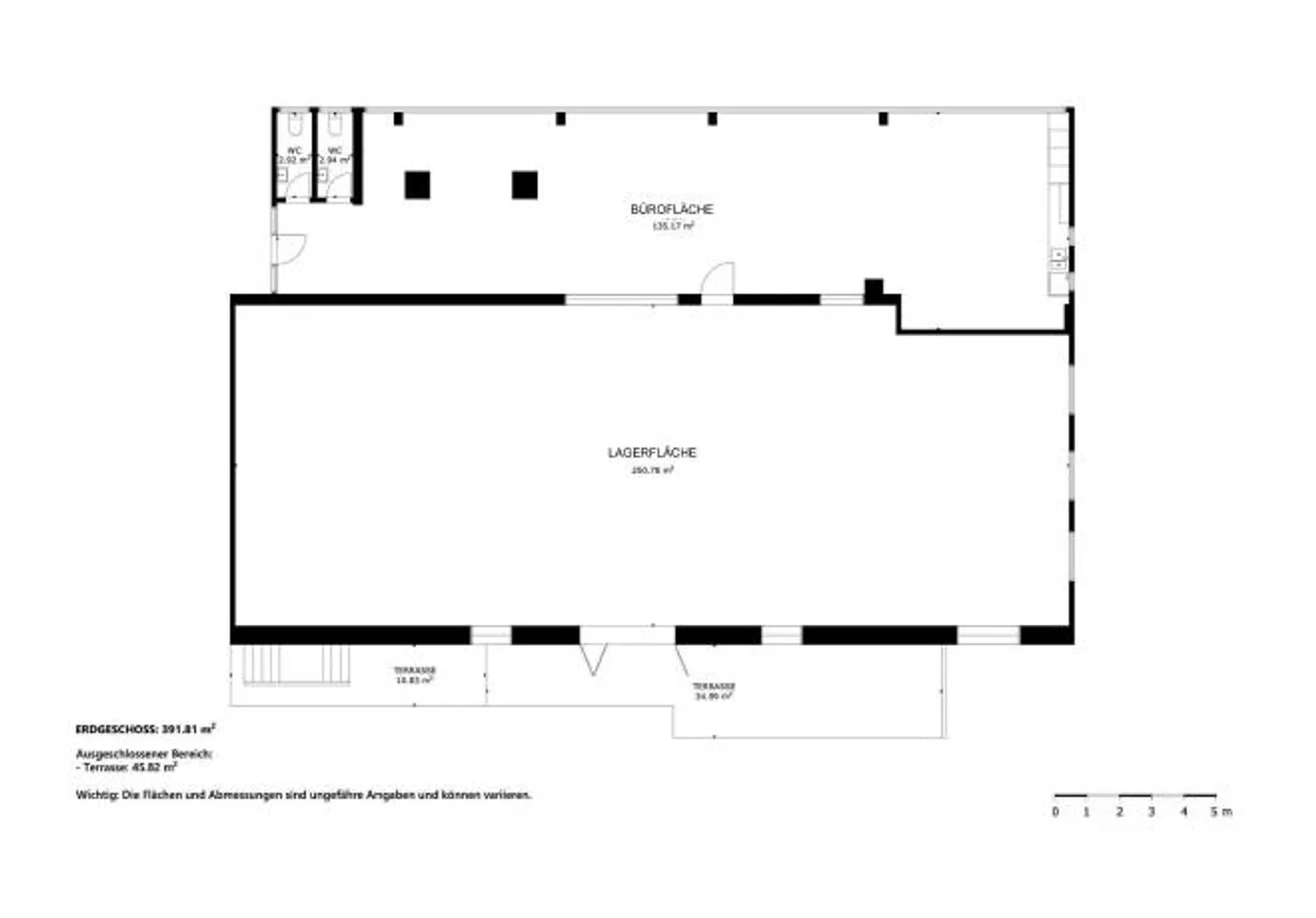
Ampio spazio di 469 m²
Accesso diretto al carico
Opzioni di layout flessibili
Organizza una visita
Prenota una visita con de oggi!
Locali commerciali attraenti - spaziosi e versatili
Locali commerciali attraenti tutto su un unico livello - spaziosi & versatili
I locali commerciali al piano terra - e le opzioni di utilizzo versatili - si trovano appena fuori dalle porte di Mellingen. Qui potrebbe essere il tuo nuovo spazio per:
* Servizi commerciali & uffici con accesso diretto allo stoccaggio visibile
* Artigianato & arte (mobili, legno, immagini, ecc.)
* Tempo libero & istruzione (pittura, bricolage, ecc.)
* Spazi espositivi di ogni tipo
* Attività di installazion...
Ripartizione dei costi
- Affitto netto
- CHF 5’500
- Costi aggiuntivi
- CHF 500
- Totale delle locazioni
- CHF 5’500
Dettagli immobile
- Disponibile dal
- Su accordo
- Anno di costruzione
- 1986
- Anno di ristrutturazione
- 2012
- Superficie terreno
- 1000 m²



