Negozio in affitto - Friedhofstrasse 2, 5610 Wohlen AG
Perché amerai questa proprietà
Grandi finestre per visibilità
Parcheggio disponibile per clienti
Magazzini in affitto
Organizza una visita
Prenota una visita con Ivona oggi!
Subaffittuario - spazio commerciale adatto per il settore della salute
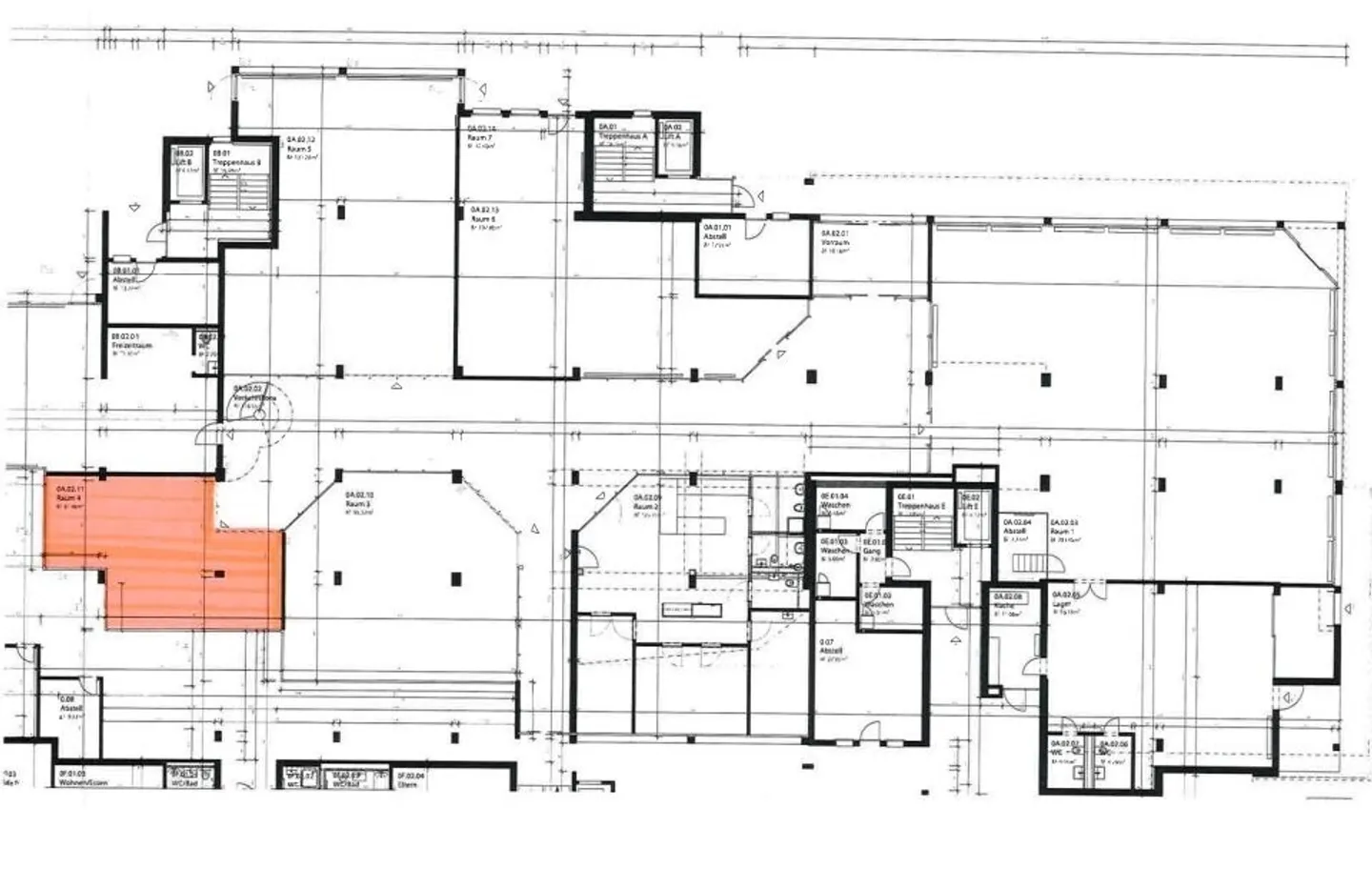
Questo spazio commerciale è disponibile nella galleria Bünzmärt a Wohlen. La galleria è stata recentemente ristrutturata. I locali si caratterizzano per le seguenti caratteristiche:
- Superficie 62 m2
- Grandi superfici vetrate con possibilità di pubblicità
- Pavimento con rivestimento in piastrelle
- Collegamento idrico e lavandino disponibili
- Parcheggio con sufficiente spazio per i clienti
I tuoi futuri vicini nella galleria Bünzmärt includono una farmacia, uno studio medico, un centro uditivo e ...
Ripartizione dei costi
- Affitto netto
- CHF 1’002
- Costi aggiuntivi
- CHF 335
- Totale delle locazioni
- CHF 1’002
Dettagli immobile
- Disponibile dal
- 06.11.2025
- Anno di costruzione
- 1981
- Anno di ristrutturazione
- 1997
- Superficie abitabile
- 62 m²
- Superficie utilizzabile
- 62 m²



