Spazio ufficio in affitto - Bahnhofstrasse 2, 8594 Güttingen
Perché amerai questa proprietà
Stanze luminose e spaziose
Accesso comodo con ascensore
Finiture di alta qualità
Organizza una visita
Prenota una visita con Gschwind oggi!
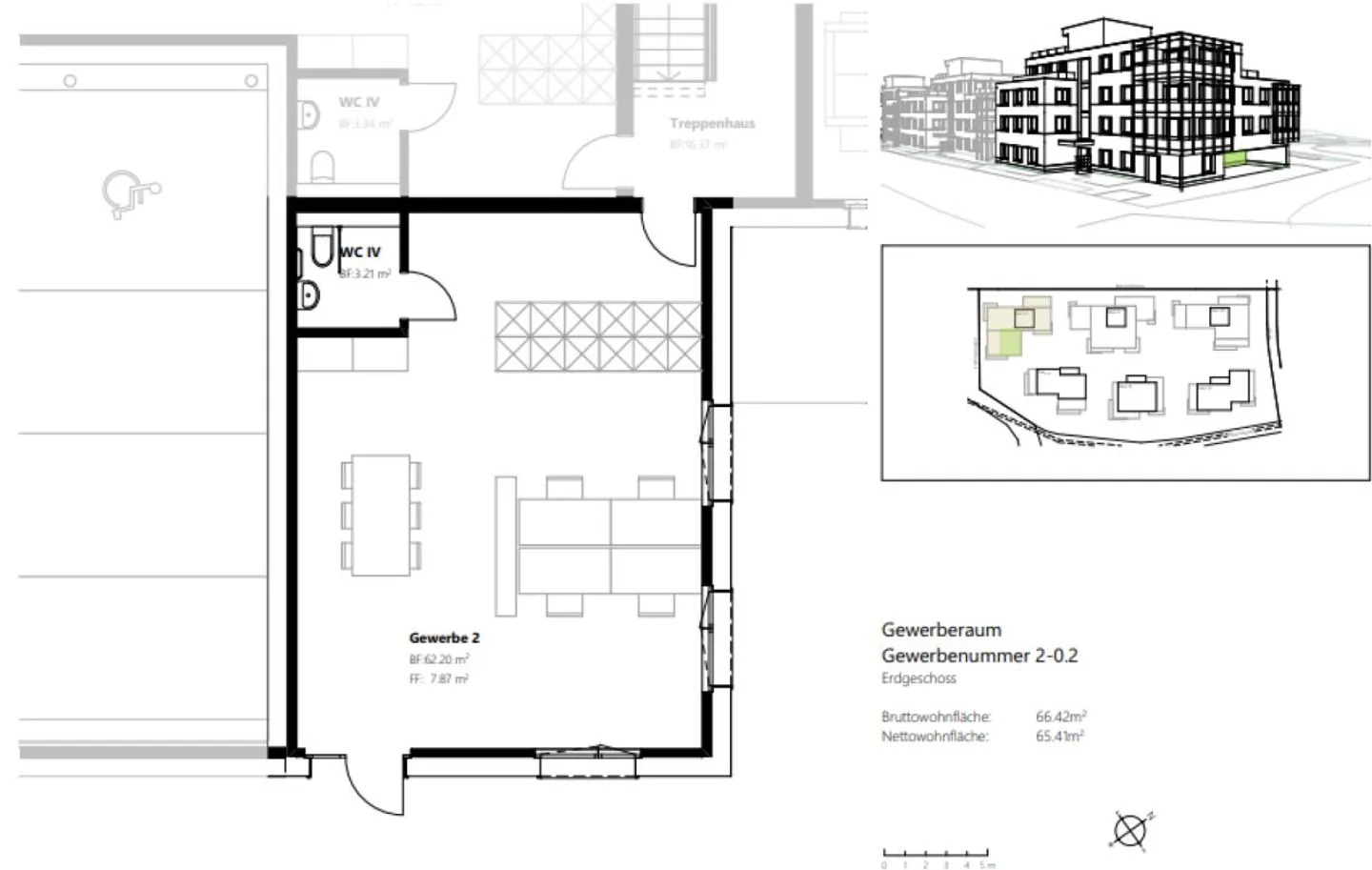
Flexible Gewerbefläche für Ihre Ideen
Flexible Gewerbefläche für Ihre Ideen
An der Bahnhofstrasse 2 vermieten wir einen hochwertigen Gewerberaum, der vielfältige Nutzungsmöglichkeiten bietet und ideal ist, um Ihre Ideen zu verwirklichen.
Ihre Vorteile auf einen Blick:
- Grosszügige Fenster sorgen für helle, freundliche Räume
- Bequemer Zugang dank Lift
- Qualitativ hochwertiger Ausbau
Verfügbar ab dem 01.04.2026
Es ist ausschliesslich stilles Gewerbe vorgesehen.
Ripartizione dei costi
- Affitto netto
- CHF 1'200
- Costi aggiuntivi
- CHF 150
- Totale delle locazioni
- CHF 1'200
Dettagli immobile
- Disponibile dal
- Su accordo
- Anno di costruzione
- 2026



