Commerciale in affitto - Route Du Pont-Rouge 1a, 1870 Monthey
Perché amerai questa proprietà
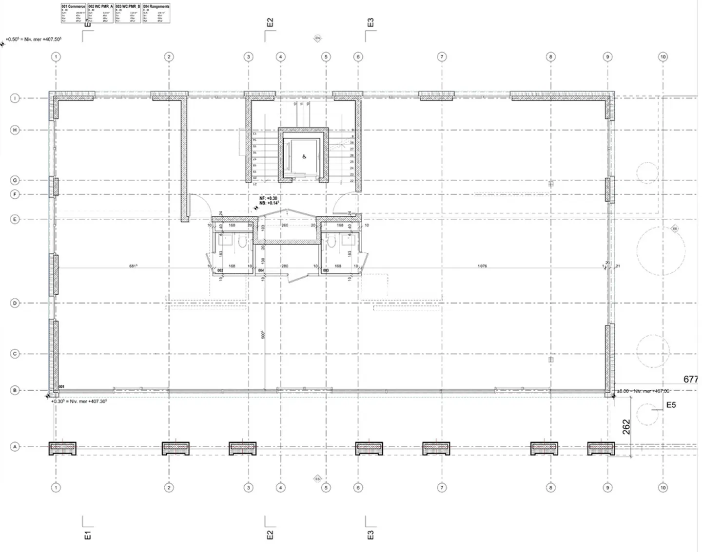
Superfici commerciali modulari
Posizione strategica
Consegna nuova costruzione
Organizza una visita
Prenota una visita oggi!
Spazi commerciali
Spazi commerciali modulari - Consegna settembre 2026
Indirizzo :
Route du Pont-Rouge 1A
1870 Monthey
In costruzione - Consegna stimata per il 01.09.2026
Offriamo in affitto vari spazi commerciali modulari in due nuovi edifici attualmente in costruzione.
Questi locali beneficiano di un'ottima posizione in un quartiere in rapida espansione e offrono grande flessibilità di layout in base alle esigenze dell'inquilino.
Edificio 1A - 233 m2 disponibili
- Superficie totale: 233 m2
- Divisibilità: Possibilità...
Ripartizione dei costi
- Affitto netto
- CHF 5’728
- Costi aggiuntivi
- CHF 25
- Totale delle locazioni
- CHF 5’728
Dettagli immobile
- Disponibile dal
- Su accordo
- Superficie abitabile
- 233 m²



