Spazio ufficio in affitto - Route Du Petit-Moncor 1a, 1752 Villars-sur-Glâne
Perché amerai questa proprietà
Quartiere d'affari dinamico
Posizione strategica
Vicino ai trasporti pubblici
Organizza una visita
Prenota una visita oggi!
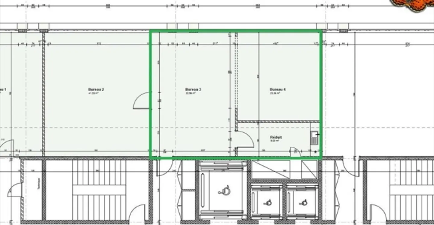
Ufficio
Area amministrativa di 65 m² in un rinomato quartiere degli affari! L'area che offriamo in affitto presenta molti vantaggi: - Un'area totale di 65,55 m² - Situata in un quartiere degli affari dinamico; - Godendo di una posizione strategica vicino ai servizi, ai trasporti pubblici e all'accesso autostradale. Non esitate oltre e venite a visitare questi uffici pieni di potenziale!
Ripartizione dei costi
- Affitto netto
- CHF 1’570
- Costi aggiuntivi
- CHF 100
- Totale delle locazioni
- CHF 1’570
Dettagli immobile
- Disponibile dal
- Su accordo
- Anno di costruzione
- 1993



