Spazio ufficio in affitto - Churerstrasse 1a, 9450 Altstätten SG
Perché amerai questa proprietà
Uffici luminosi
Cucina moderna condivisa
Posizione centrale con servizi
Organizza una visita
Prenota una visita con Alexander oggi!
Stai cercando uno spazio ufficio nel centro di altstätten?
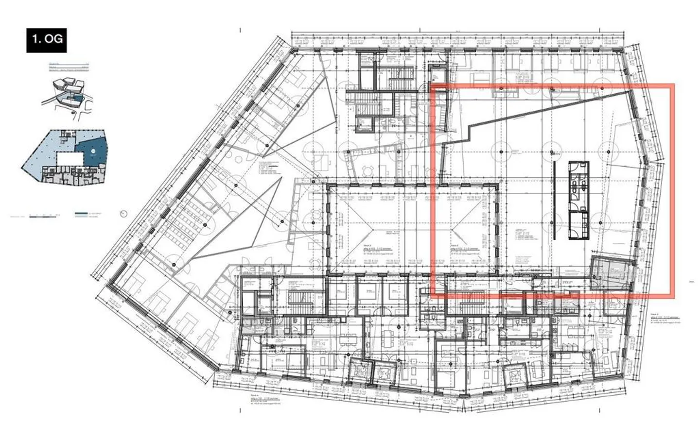
Disponibile immediatamente o su appuntamento, affittiamo spazi commerciali versatili da 97 m2 a 351 m2 al 1° piano della Freihofpassage. Gli spazi sono parzialmente divisibili e sono ideali per varie attività commerciali.
I seguenti punti salienti vi aspettano:
* Uffici luminosi con un'atmosfera di lavoro piacevole
* Ampia distribuzione degli spazi
* Cucina moderna in comune
* Servizi igienici disponibili al piano
* Ascensore disponibile
* Posti auto possono essere affittati per CHF 150/mese
* Garage pu...
Dettagli immobile
- Disponibile dal
- Su accordo
- Superficie abitabile
- 352 m²
- Superficie utilizzabile
- 352 m²



