Spazio ufficio in affitto - Route De Saint-Julien 198, 1228 Plan-les-Ouates
Perché amerai questa proprietà
Uffici pronti all'uso
Materiali di alta qualità
Servizio di ristorazione in loco
Organizza una visita
Prenota una visita con Picque oggi!
Uffici moderni in affitto
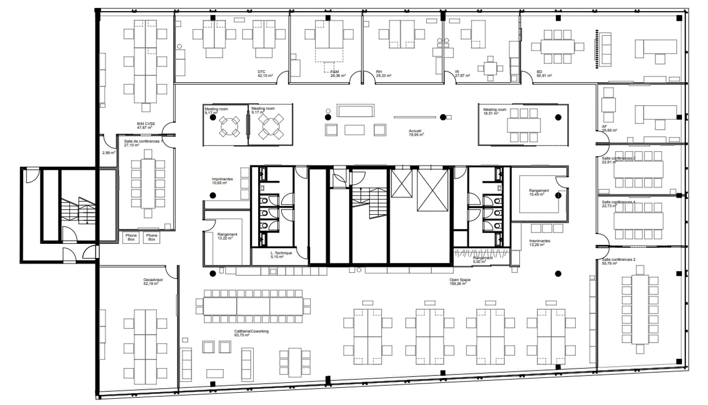
Disponibile per l'affitto, uffici plug and play in un edificio moderno nella zona industriale di Plan-les-Ouates :
Caratteristiche dei locali :
- Controllo accessi
- Reception nell'edificio
- Ascensore & montacarichi con accesso diretto all'area
- Area attrezzata con materiali di alta qualità
- Distribuzione attuale mista (Open-Space, uffici, sale conferenze) / Stanze modulari
- Pavimento flottante / dotato di scatole a pavimento
- Servizi igienici separati
- Kitchenette con area relax
- Sistema d...
Dettagli immobile
- Disponibile dal
- Su accordo
- Superficie abitabile
- 1065 m²
- Superficie utilizzabile
- 1065 m²



