Spazio ufficio in affitto - Wiesenstrasse 19, 8952 Schlieren
Perché amerai questa proprietà
Opzioni di layout flessibili
Accesso a Internet veloce
A 2 min a piedi dalla stazione
Organizza una visita
Prenota una visita con Yalcin oggi!
Punto di accesso aziendale rietpark schlieren
Collegamento ottimale alla stazione di Schlieren
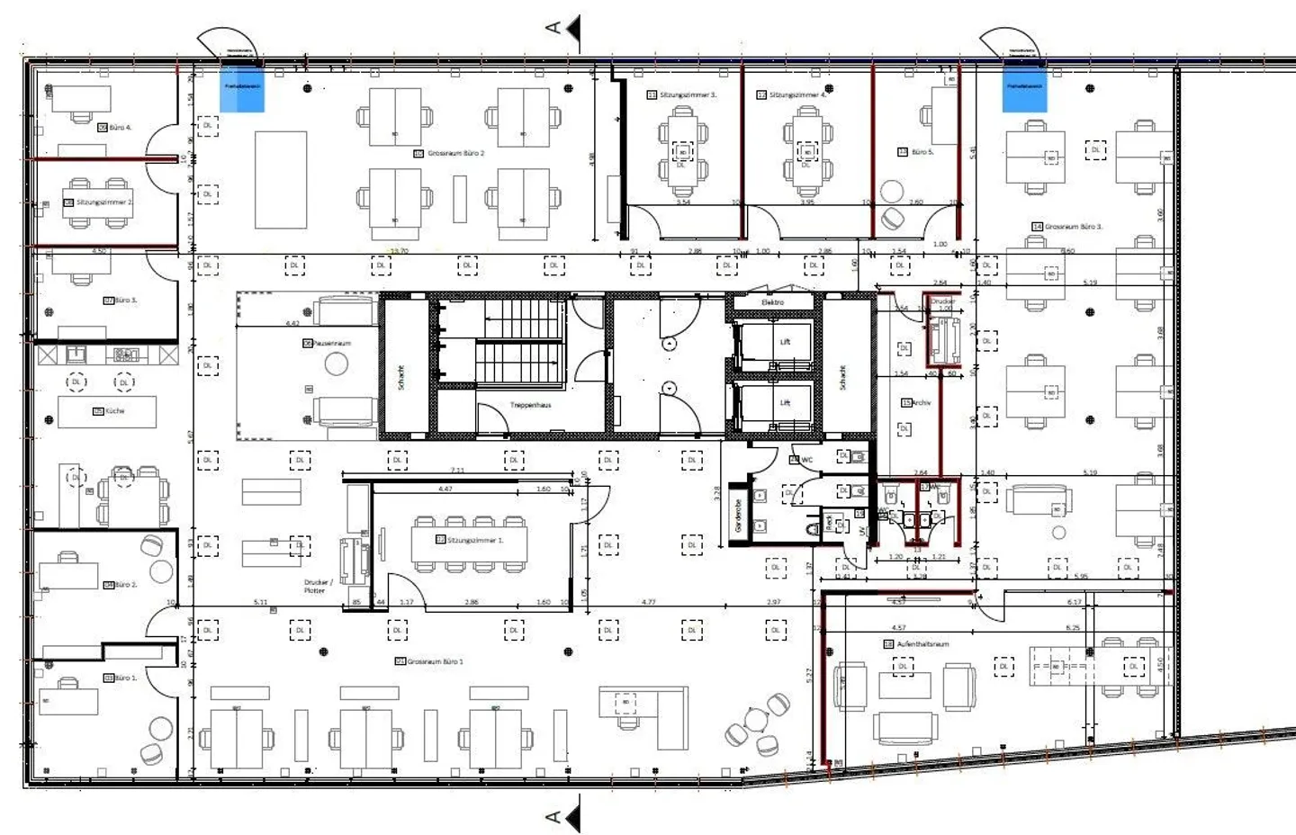
Spazio ufficio moderno nel Rietpark Schlieren - utilizzabile in modo flessibile
In Wiesenstrasse 19 vi aspetta uno spazio ufficio rappresentativo e luminoso di 703 m², divisibile in 2 x circa 350m² - ideale per aziende che puntano sulla crescita e sull'innovazione. L'ufficio nel popolare quartiere "Rietpark" offre un layout flessibile, tecnologia edilizia di alta qualità (standard Minergie, internet ad alta velocità, raffreddamento/riscaldamento) ...
Dettagli immobile
- Disponibile dal
- Su accordo
- Superficie abitabile
- 350 m²
- Superficie utilizzabile
- 350 m²



