Spazio di archiviazione in affitto - Murgtalstrasse 18, 9542 Münchwilen TG
Perché amerai questa proprietà
Uffici luminosi e funzionali
Accesso diretto tramite ascensore
26 posti auto esterni disponibili
Organizza una visita
Prenota una visita con Beer oggi!
Spazio ufficio e magazzino rappresentativo disponibile per affitto immediato
Disponibile immediatamente o su appuntamento, stiamo affittando uno spazio commerciale attraente con un'unità ufficio spaziosa, un magazzino pratico e numerosi posti auto all'aperto. La proprietà offre condizioni ideali per le aziende con logistica combinata di ufficio e magazzino.
Spazio ufficio al piano terra:
- ca. 301m2 di spazio ufficio
- Uffici luminosi e funzionali
- Prezzo: CHF 130.-/m2 p.a. (Netto, escl. NK)
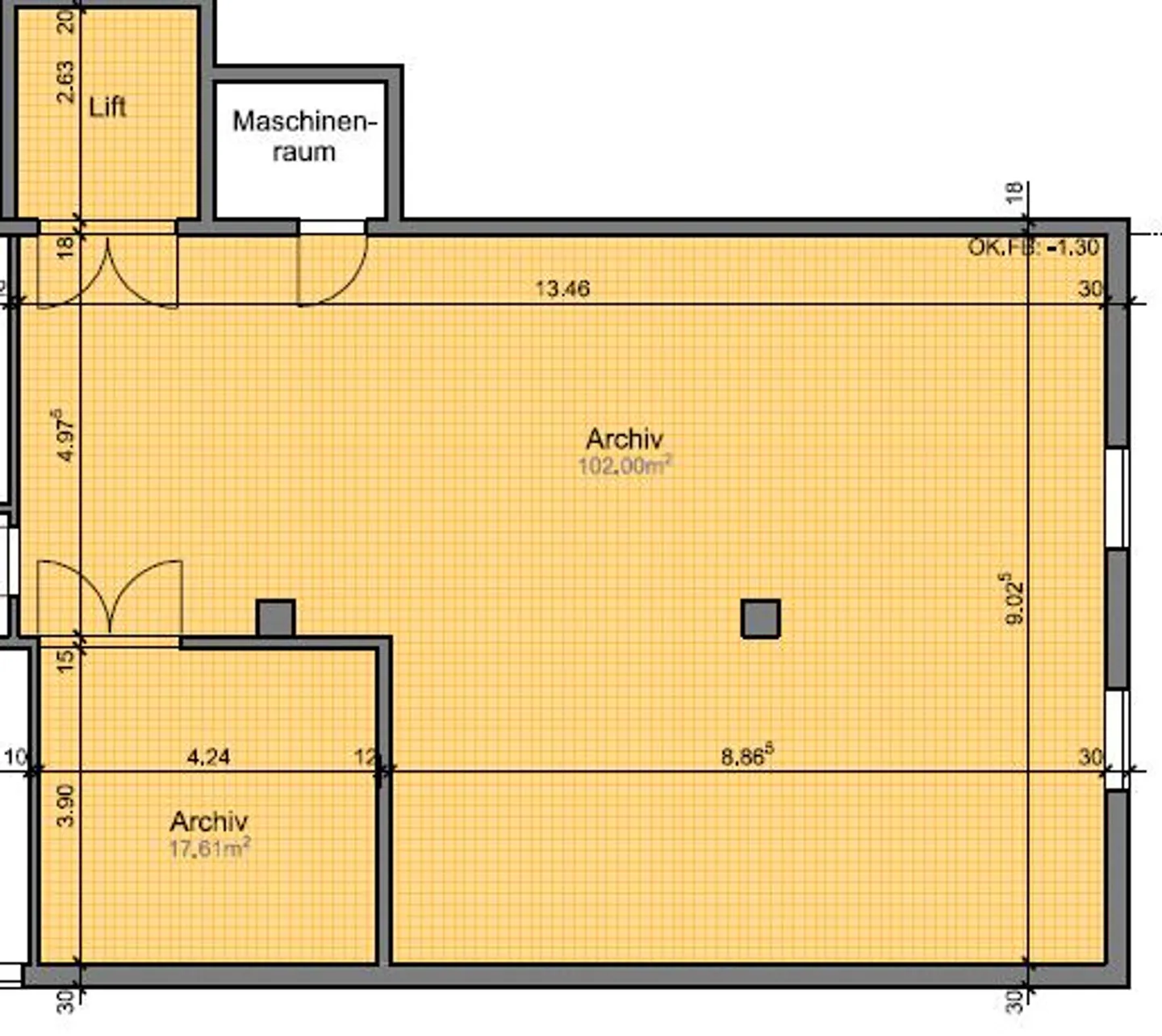
Spazio di magazzino nel seminterrato:
- ca. 120m2 di spazio di magazzino
- Accesso dir...
Dettagli immobile
- Disponibile dal
- Su accordo



