Spazio ufficio in affitto - Avenue Louis- Casaï 18, 1209 Genève
Perché amerai questa proprietà
Facciata ristrutturata con nuova vetratura
Elevato standard di efficienza energetica
Posti auto disponibili
Organizza una visita
Prenota una visita con Humbert oggi!
Uffici in affitto vicino al centro di Ginevra, Avenue Louis-Casai
In affitto, in un edificio ristrutturato, spazi per uffici vicino al centro di Ginevra:
Facciata ristrutturata con installazione di nuove vetrate
Sistemi di riscaldamento sostituiti (c.v.c.)
Nuovi sistemi di ventilazione
Aree pre-attrezzate per la regolazione
Canali a pavimento
Cablaggio CAT-7
Servizi igienici
Controllo accessi
Posti auto disponibili
Edificio con standard elevato di prestazione energetica (Minergie)
Costi aggiuntivi e spese: CHF 55.-/m2/anno
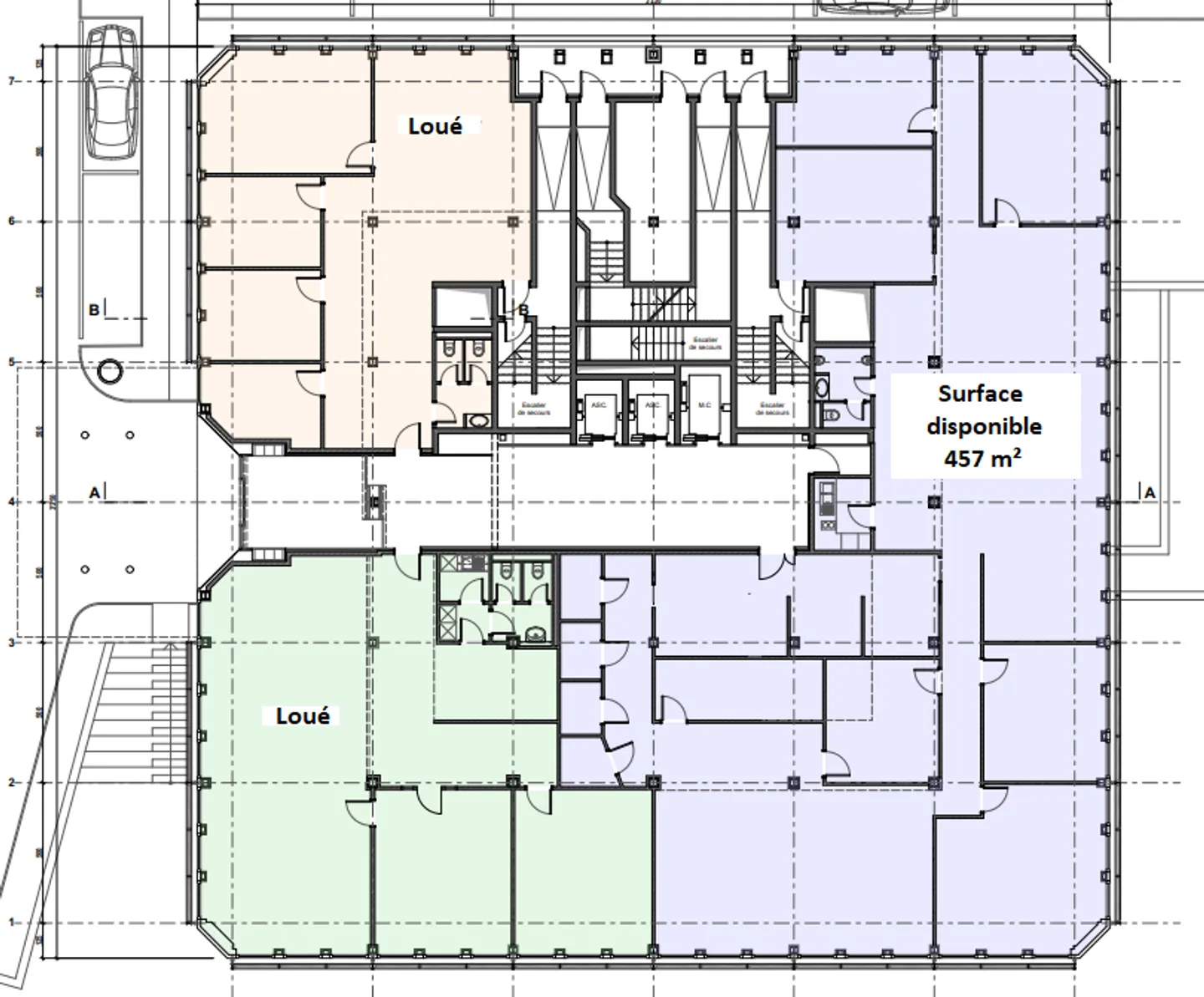
Dettagli immobile
- Disponibile dal
- Su accordo
- Superficie abitabile
- 457 m²
- Superficie utilizzabile
- 457 m²



