Commerciale in affitto - Zürichstrasse 17, 8607 Aathal-Seegräben
Perché amerai questa proprietà
Spazio luminoso con grandi finestre
Layout flessibile per vari usi
Parcheggio per visitatori disponibile
Organizza una visita
Prenota una visita con Julia oggi!
Spazio commerciale in una posizione ad alto traffico
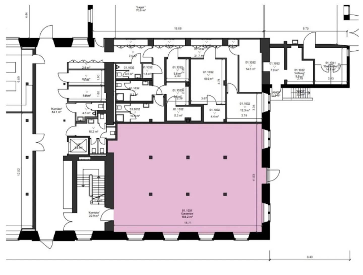
Affittiamo questo spazio commerciale/vendita attraente lungo la strada molto trafficata ad Aathal immediatamente o su appuntamento. Lo spazio offerto si trova al piano terra e copre una generosa area di circa 184m2.
Lo spazio offre i seguenti vantaggi:
- Area luminosa con grandi finestre su due lati
- Spogliatoio con bagno può essere preso in carico come ampliamento dell'inquilino dal precedente inquilino
- Pianta flessibile e installazioni tecniche per vari usi
- Parcheggio per visitatori dirett...
Dettagli immobile
- Disponibile dal
- 15.12.2025
- Superficie abitabile
- 184 m²
- Superficie utilizzabile
- 184 m²



