Commerciale in affitto - Route De Pré-Bois 17, 1215 Genève
Perché amerai questa proprietà
Uffici luminosi e modulari
Terrazza privata disponibile
Eccellenti collegamenti di trasporto
Organizza una visita
Prenota una visita oggi!
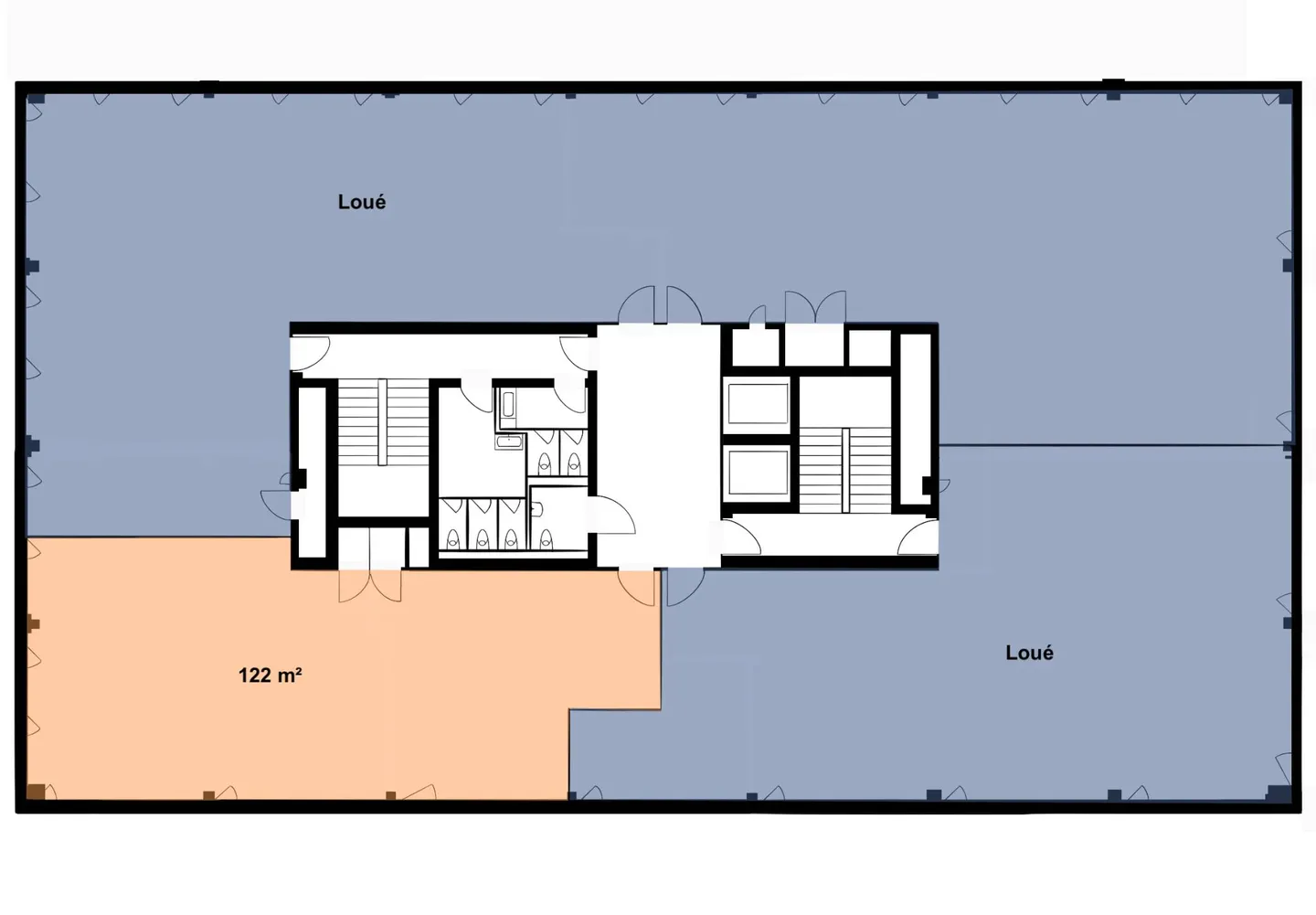
Uffici moderni e luminosi di 120m2 Settore Aeroporto
L'edificio Pré-Bois (PBB) è l'indirizzo ideale per i vostri futuri uffici! Situato in una posizione strategica, questo edificio etichettato Alta Prestazione Energetica offre un ambiente di lavoro moderno e funzionale.
Con 2.700 m2 di uffici distribuiti su 5 livelli e divisibili a partire da 147 m2, PBB offre spazi luminosi grazie a una facciata con ampie vetrate. Gli uffici sono completamente modulari in base alle vostre esigenze, con un contributo del locatore ai lavori (fino a CHF 500.-/m²/an...
Ripartizione dei costi
- Affitto netto
- CHF 1’637
- Costi aggiuntivi
- CHF 630
- Totale delle locazioni
- CHF 1’637
Dettagli immobile
- Disponibile dal
- 01.01.1970
- Superficie abitabile
- 120 m²
- Superficie utilizzabile
- 120 m²



