Commerciale in affitto - Industriestrasse 160, 8957 Spreitenbach
Perché amerai questa proprietà
Luminoso con grandi finestre
Finiture di alta qualità
Ottimi collegamenti di trasporto
Organizza una visita
Prenota una visita con Timon oggi!
Spazio ufficio/pratica di alta qualità con ottima connessione - Spreitenbach
Moderno | Centrale | Utilizzo versatile
Spazio per uffici/pratiche situato centralmente a Spreitenbach - modernamente sviluppato con opzioni di utilizzo versatili.
VANTAGGI A COLPO D'OCCHIO
Area luminosa:
Grande facciata finestrata- Standard di espansione attraente:
Due bagni separati & cucina propria, luci a soffitto preinstallate, riscaldamento a pavimento, persiane elettriche e sistema di badge in tutto l'edificio.
I posti auto possono essere affittati per CHF 120.- più IVA al mese
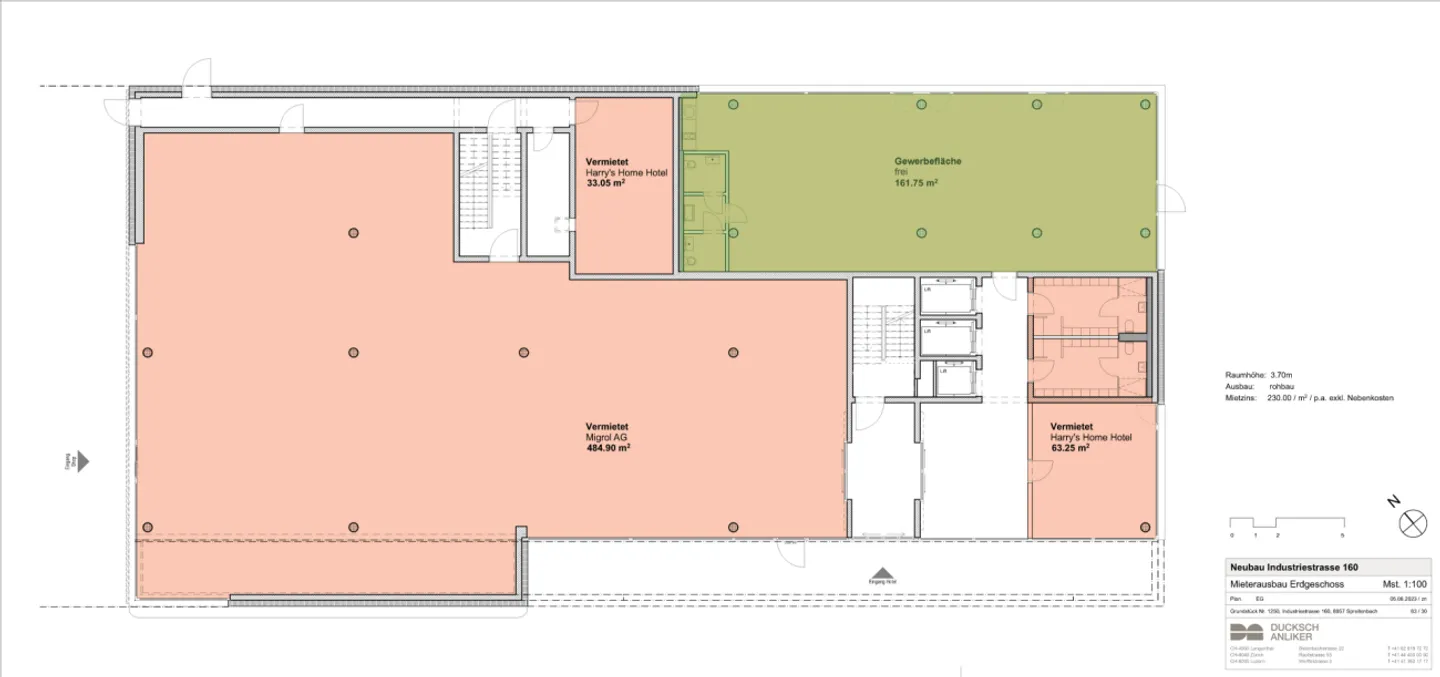
AREE DISPONIBI...
Ripartizione dei costi
- Affitto netto
- CHF 3'240
- Costi aggiuntivi
- CHF 537
- Totale delle locazioni
- CHF 3'777
Dettagli immobile
- Disponibile dal
- Su accordo
- Stanze
- 1
- Anno di costruzione
- 2023
- Superficie abitabile
- 162 m²
- Superficie utilizzabile
- 162 m²



