Commerciale in affitto - Rue Saint-François 16, 1003 Lausanne
Perché amerai questa proprietà
Posizione ad alto traffico
Tre livelli spaziosi
Accesso con ascensore privato
Organizza una visita
Prenota una visita con PBBG oggi!
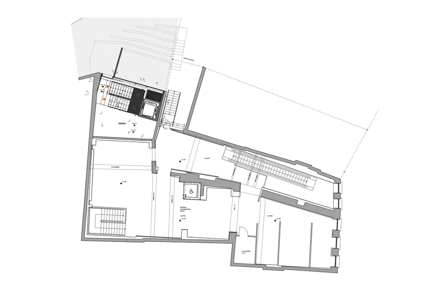
Proprietà commerciale locale di 698 m2 nel cuore di losanna
Spazio commerciale unico nel cuore del centro di Losanna su tre piani
A due passi da Place Saint-François e rue Centrale, molto frequentata dagli abitanti della città, l'edificio si trova in una zona pedonale nel cuore del prestigioso quartiere di rue de Bourg a Losanna; non lontano da negozi noti come Maje, Bon Génie, La Durée e Louis Vuitton. Vieni a stabilire la tua attività per una visibilità ottimale.
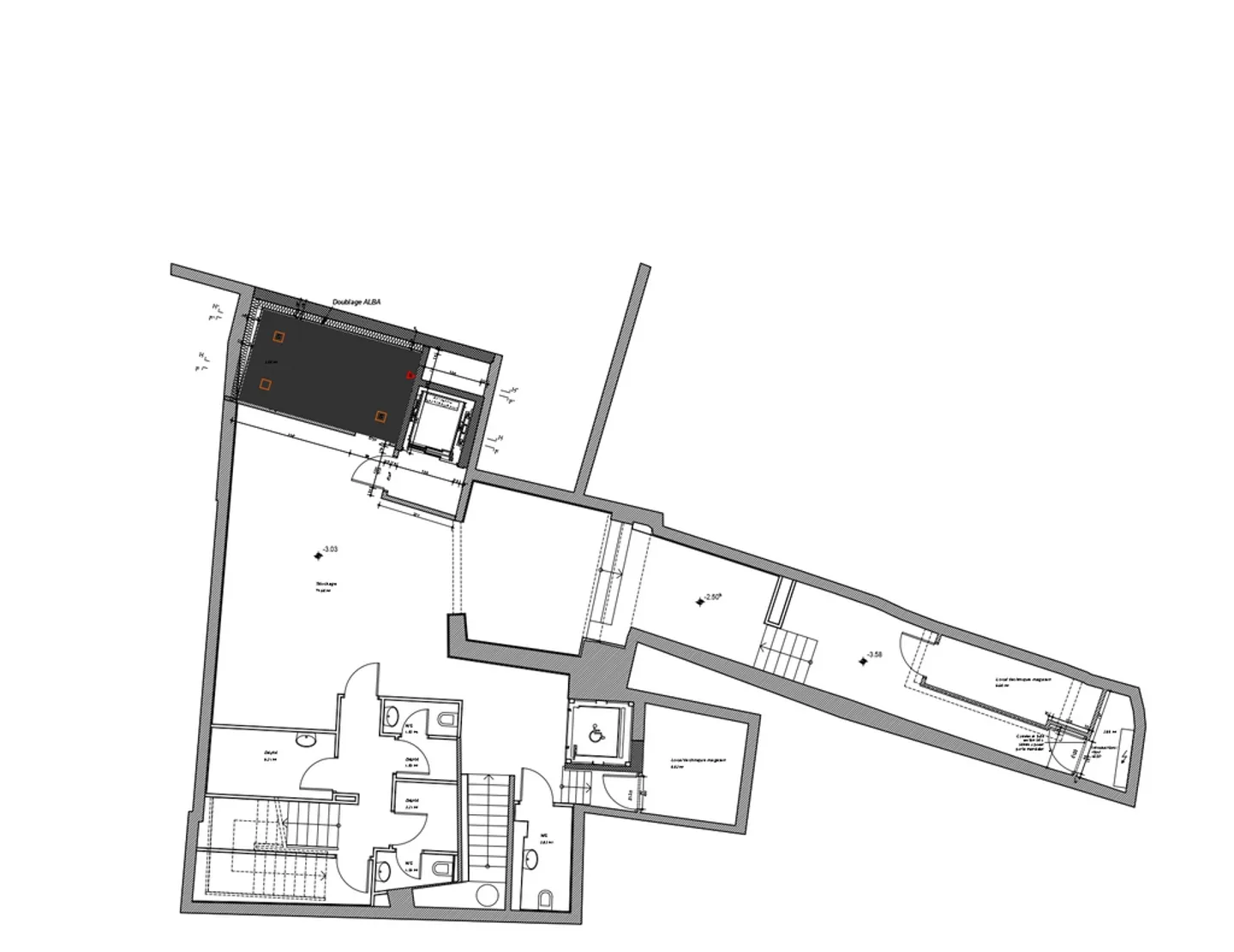
L'edificio è composto da tre piani:
* Magazzini, WC/lavabo, sala pausa nel seminterrato, 169m...
Dettagli immobile
- Disponibile dal
- 01.01.2026
- Superficie abitabile
- 698 m²
- Superficie utilizzabile
- 698 m²


