Spazio ufficio in affitto - Boulevard De Saint-Georges 16, 1205 Genève
Perché amerai questa proprietà
Architettura moderna
Spazi aperti flessibili
Certificazione Minergie
Organizza una visita
Prenota una visita con Humbert oggi!
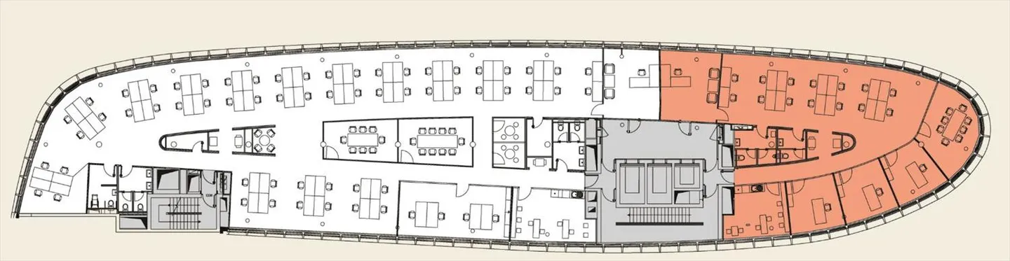
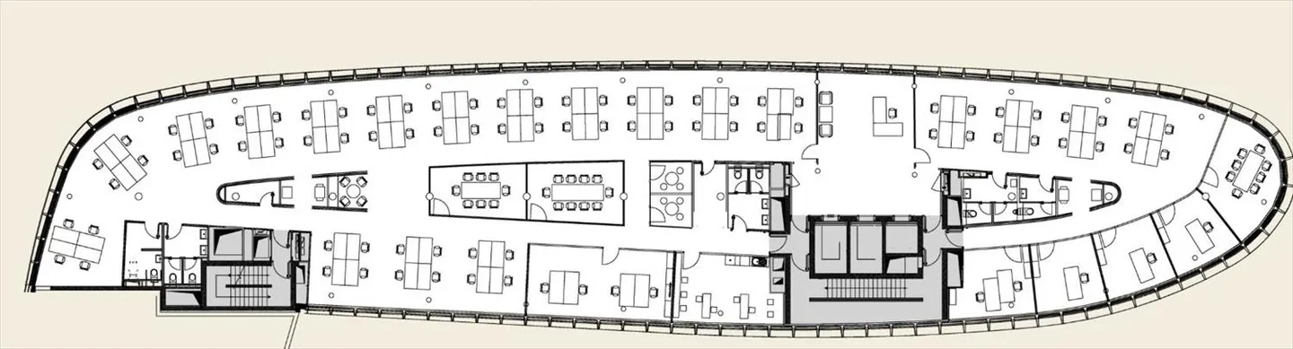
Ufficio
Spazi per uffici in affitto in un edificio iconico nel centro di Ginevra
Vicino all'iper centro di Ginevra, spazi per uffici in affitto in un edificio con architettura iconica e moderna.
Edificio R + 7
Piano tipico di 890 m2 divisibile in lotti di 260 m2 e 600 m2
Piani efficienti e luminosi con possibilità di creare open space o uffici separati
Ascensori e montacarichi
58 posti auto
Etichetta minergie
Pavimento tecnico
Lastre attive per riscaldamento e raffreddamento
Geocooling
Servizi igien...
Dettagli immobile
- Disponibile dal
- Su accordo
- Superficie abitabile
- 260 m²



