1 / 7

Spazio ufficio in affitto - Am Pärkli 16, 9000 St. Gallen

315 m² • 2° piano
Prezzo su richiesta
-

Perché amerai questa proprietà

Design open space flessibile

Opzioni di layout personalizzabili

Posizione centrale vicino ai servizi

Organizza una visita

Prenota una visita con Radovanovic oggi!

Radovanovic Denis
Mobimo AG
Questa descrizione è stata tradotta automaticamente da Tedesco.

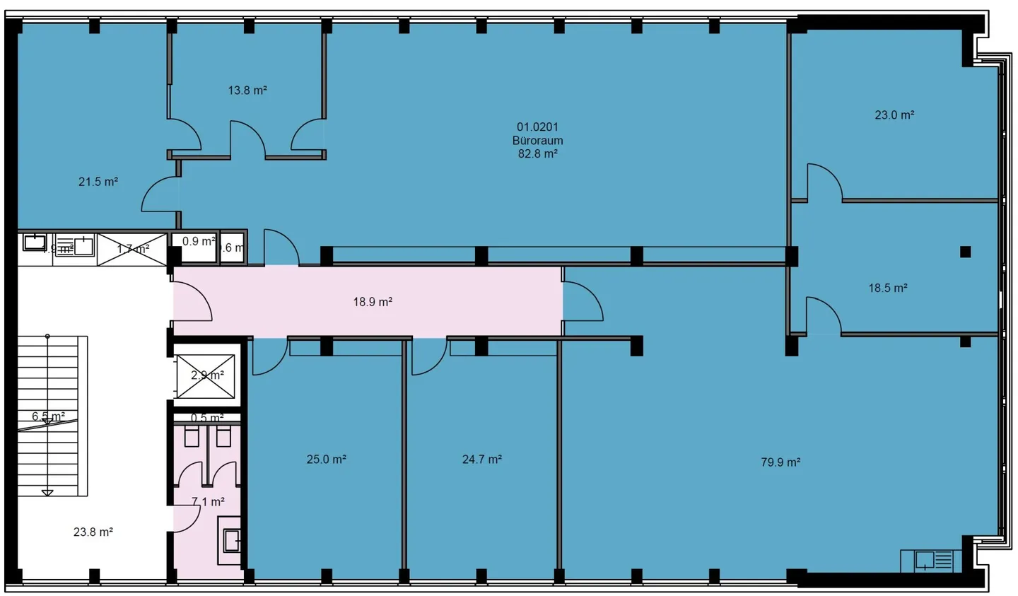
315 m² ufficio / spazio di pratica nel cuore di st. gallen

Posizione centrale, utilizzo flessibile, forte presenza:

Nel cuore del centro di San Gallo, al 2° piano, un luminoso e aperto spazio in affitto attende nuove idee - ideale per uffici, studi o fornitori di servizi.

Cosa ti aspetta:

* Tanto spazio per le tue visioni: Open Space, uffici singoli o di gruppo - c'è tutto

* Espansione personalizzata: Parleremo con te delle tue esigenze

* Migliore posizione: Direttamente in Oberer Graben - mezzi pubblici, gastronomia e shopping a distanza di cammino

* Rappres...

Dettagli immobile

Disponibile dal
Su accordo
Superficie abitabile
315
Superficie utilizzabile
315

Agenzia

Mobimo AG
Indirizzo:Seestrasse 59, 8700, Küsnacht ZH
Ref: 12016.01.0201_2509

Località

Am Pärkli 16, 9000 St. Gallen

Fonti