Negozio in affitto - Barfüsserplatz 15, 4051 Basel
Perché amerai questa proprietà
Posizione ad alto traffico
Cucina spaziosa inclusa
Atmosfera luminosa con grandi finestre
Organizza una visita
Prenota una visita oggi!
Cercasi nuovo inquilino per spazio commerciale in barfüsserplatz
Opportunità unica per un modello commerciale in una posizione centrale e frequentata a Basilea
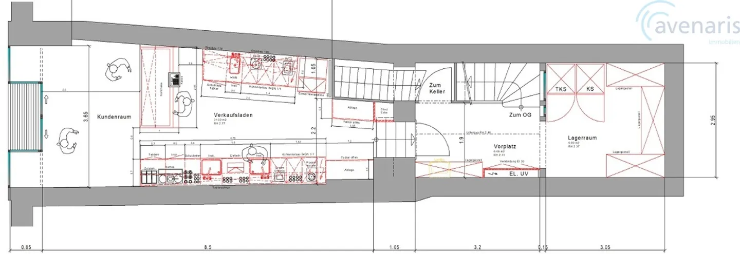
Proprietà: Spazio commerciale, circa 80m², distribuito su piano terra e 1° piano.
Posizione: Posizione centrale a Barfüsserplatz con un alto traffico pedonale. Grande vetrina che garantisce una visibilità ottimale e rende l'attività attraente per i clienti di passaggio.
Utilizzo: Adatto per un take-away, vendita di bevande e pasticceria o attività di ristorazione simili.
Attrezzature:
* Una cucina ampia...
Dettagli immobile
- Disponibile dal
- 20.10.2025
- Superficie abitabile
- 80 m²
- Superficie utilizzabile
- 80 m²



