1 / 8

Negozio in affitto - Barfüsserplatz 15, 4051 Basel

CHF 9’750.-
-

Perché amerai questa proprietà

Posizione ad alto traffico

Cucina spaziosa inclusa

Atmosfera luminosa con grandi finestre

Organizza una visita

Prenota una visita oggi!

Questa descrizione è stata tradotta automaticamente da Tedesco.

Cercasi nuovo inquilino per spazio commerciale in barfüsserplatz

Opportunità unica per un modello di business in una posizione centrale e frequentata a Basilea

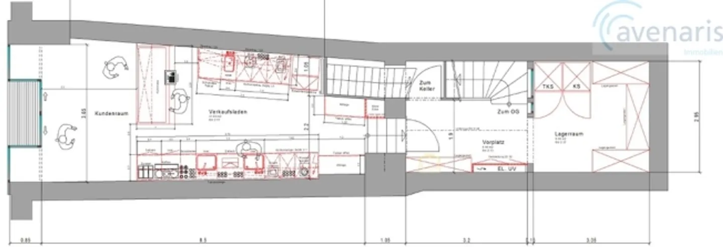
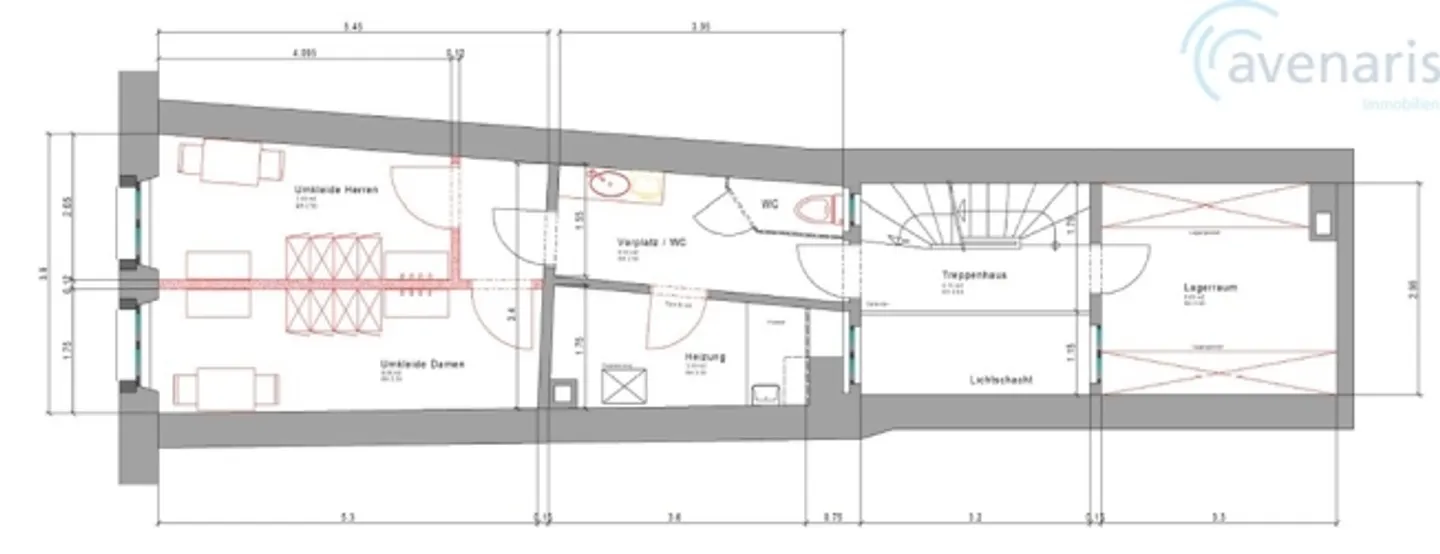
Proprietà: Negozio al dettaglio, superficie commerciale di circa 80m², distribuita su piano terra e primo piano.

Posizione: Posizione centrale in Barfüsserplatz con alto traffico pedonale. Grande vetrina che garantisce una visibilità ottimale e rende l'attività attraente per i clienti di passaggio.

Utilizzo: Adatto per un take-away, vendita di bevande e pasticceria o attività di ristorazione simili.

At...

Dettagli immobile

Disponibile dal
Su accordo

Agenzia

Località

Barfüsserplatz 15, 4051 Basel

Fonti