Spazio ufficio in affitto - Im Langhag 14, 8307 Effretikon
Perché amerai questa proprietà
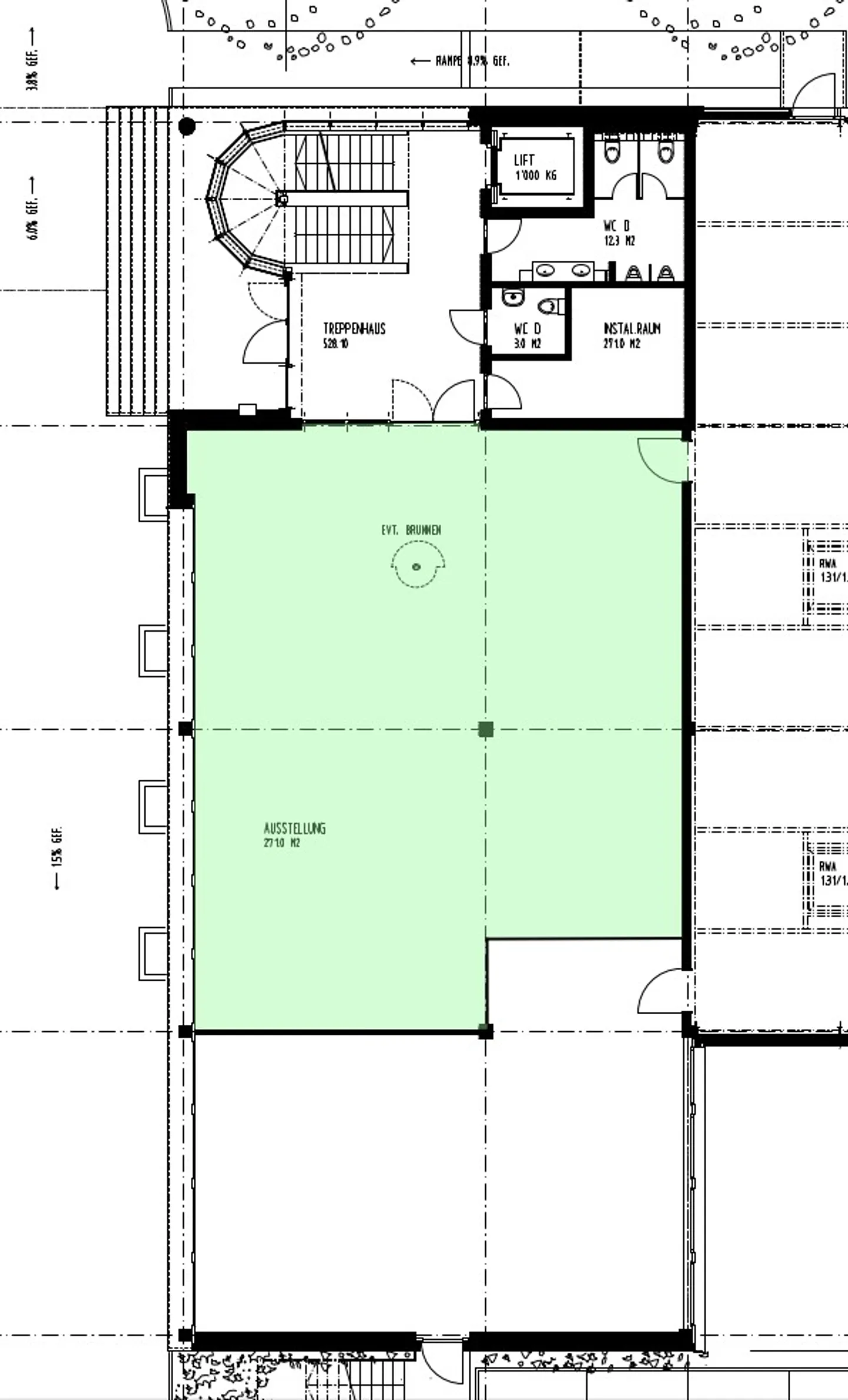
Ufficio spazioso e pronto
Ottimo accesso all'autostrada
Varie comodità locali
Organizza una visita
Prenota una visita con Markus oggi!
Showroom luminoso / Ufficio attraente
Benvenuti nel quartiere commerciale di Langhag a Effretikon!
Questo spazio per uffici si trova in un edificio rappresentativo e ben curato vicino all'accesso autostradale A1 (Berna/San Gallo) e può essere utilizzato come ufficio o showroom.
I seguenti vantaggi supportano la tua decisione per questa posizione:
Spazi per uffici attraenti
* Spazio per uffici sviluppato e pronto per essere occupato
* Stanze luminose e aperte
* Servizi igienici privati
* Illuminazione a soffitto
* Pavimento piastrellato
* Par...
Ripartizione dei costi
- Affitto netto
- CHF 2’309
- Costi aggiuntivi
- CHF 12
- Totale delle locazioni
- CHF 2’309
Dettagli immobile
- Disponibile dal
- 01.01.2026
- Stanze
- 1
- Anno di costruzione
- 1999
- Superficie abitabile
- 171 m²
- Superficie utilizzabile
- 171 m²



