Spazio ufficio in affitto - Dammstrasse 14, 8810 Horgen
Perché amerai questa proprietà
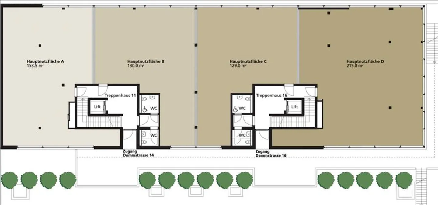
Dimensioni delle stanze flessibili
Vicino alla stazione
Opzioni di parcheggio disponibili
Organizza una visita
Prenota una visita con Wincasa oggi!
- Diverse dimensioni delle stanze disponibili: 130m2 e 154m2
- Le stanze possono anche essere combinate
- Affittato in costruzione grezza
- Affitto netto CHF 203.-/m2/anno
- Costi aggiuntivi CHF 30.-/m2/anno
- WC separati per donne e uomini
- Collegamento per cucina disponibile
- Ascensore per passeggeri
- Le stanze di deposito nel 2° piano interrato possono essere affittate separatamente
- Stazione ferroviaria nelle immediate vicinanze
- Accesso all'autostrada raggiungibile in pochi minuti
- Posti auto a ...
Dettagli immobile
- Disponibile dal
- Su accordo
- Anno di costruzione
- 2012
- Superficie abitabile
- 154 m²
- Superficie utilizzabile
- 154 m²



