Spazio ufficio in affitto - Rue De La Servette 13, 1201 Genève
Perché amerai questa proprietà
Area reception funzionale
Sala conferenze moderna
Vicino ai trasporti pubblici
Organizza una visita
Prenota una visita con maison.work oggi!
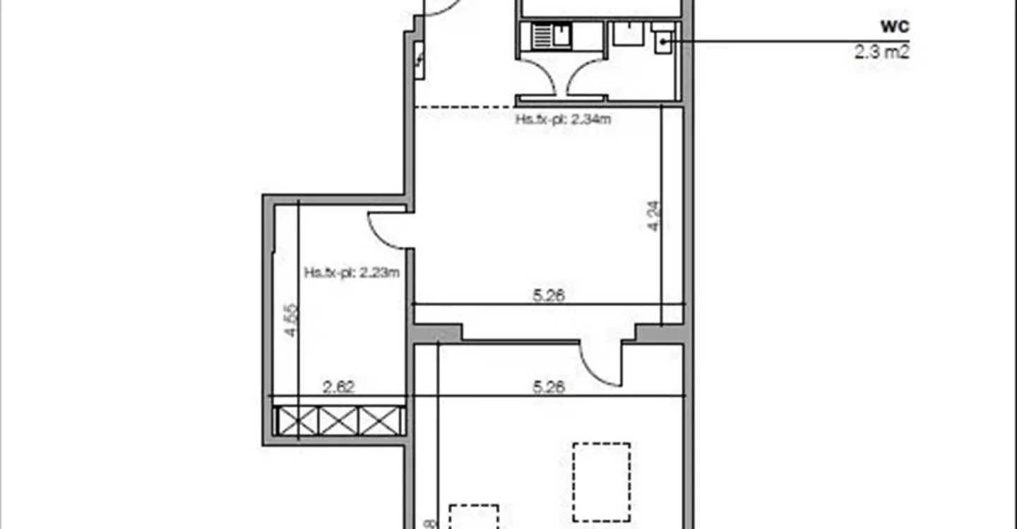
Uffici di 114 m² idealmente situati
Nel cuore del dinamico quartiere della Servette, questi uffici di 114 m² al 1° piano offrono un ambiente di lavoro piacevole e funzionale, in immediata prossimità dei mezzi pubblici, negozi e servizi.
Descrizione della superficie:
- 1 area reception
- 2 uffici separati
- 1 sala conferenze
- 1 angolo cottura
- 1 bagno
Contatto per visite:
Sig. Grégoire MARRA
Dettagli immobile
- Disponibile dal
- Su accordo
- Superficie abitabile
- 114 m²
- Superficie utilizzabile
- 114 m²


