Spazio ufficio in affitto - Florhofstrasse 13, 8820 Wädenswil
Perché amerai questa proprietà
Fascino di un edificio storico
Alte soffitte per il comfort
Eccellenti collegamenti di trasporto
Organizza una visita
Prenota una visita con Bösch oggi!
Ufficio
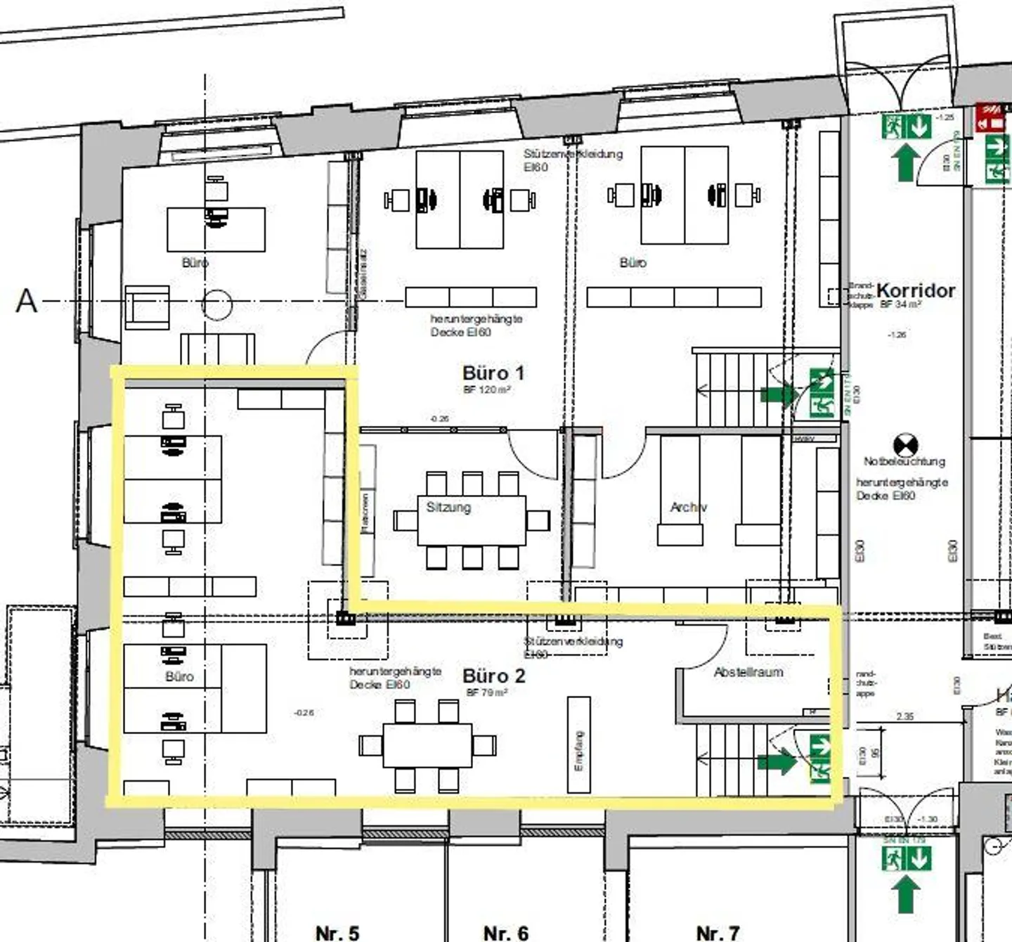
Nell'edificio storico di Florhofstrasse 13, affittiamo locali attraenti e luminosi, perfetti per essere utilizzati come ufficio o spazio commerciale. L'ex edificio industriale con soffitti alti offre un ottimo clima interno.
L'area in affitto è autonoma e accessibile tramite il corridoio. Lo spazio commerciale viene affittato in stato grezzo. È disponibile un ulteriore spazio di stoccaggio all'interno dell'area. I bagni e la cucina, situati allo stesso piano, possono essere utilizzati in comune.
L...
Ripartizione dei costi
- Affitto netto
- CHF 2’097
- Costi aggiuntivi
- CHF 330
- Totale delle locazioni
- CHF 2’097
Dettagli immobile
- Disponibile dal
- Su accordo
- Anno di ristrutturazione
- 2023



