Grande magazzino in affitto - Corso Elvezia 13, 6900 Lugano
Perché amerai questa proprietà
Posizione centrale
Entrata vetrina per visibilità
Aria condizionata installata
Organizza una visita
Prenota una visita con Noemi oggi!
9100, Solatia 1, Lugano, Corso Elvezia, Negozio 5
Spazio commerciale con vetrina
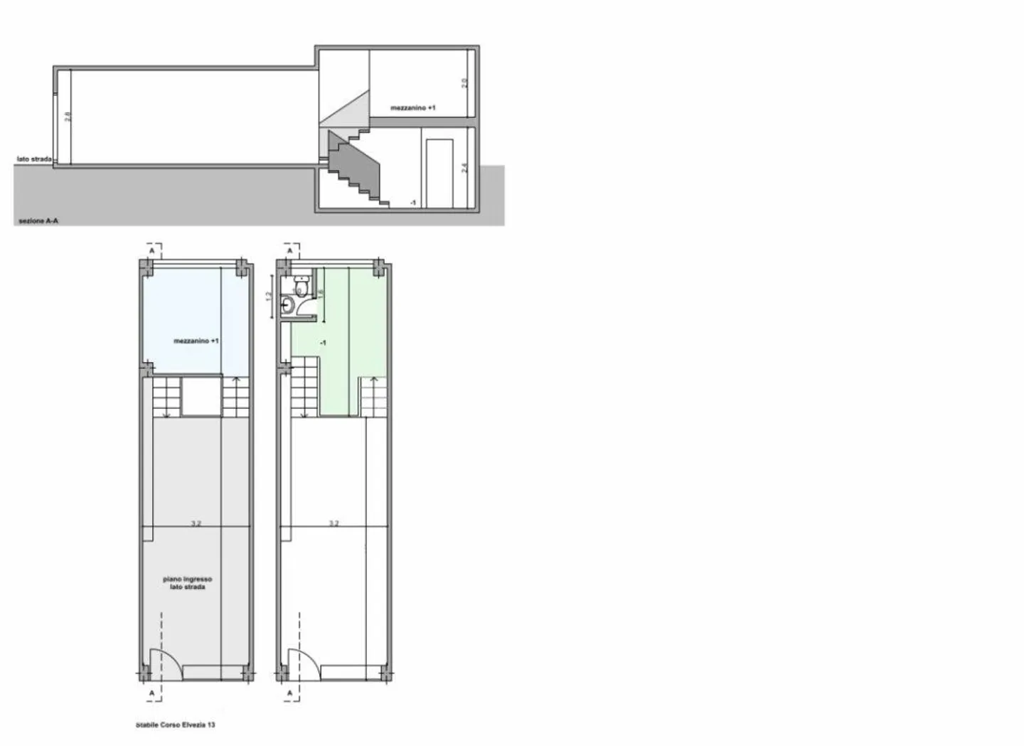
Spazio commerciale di 62 m² nel centro di Lugano con vetrina su Corso Elvezia.
* Ingresso con vetrina
* Mezzanino per eventuali uffici
* Bagno di servizio
* Magazzino
* Aria condizionata già installata
Ripartizione dei costi
- Affitto netto
- CHF 2’430
- Costi aggiuntivi
- CHF 180
- Totale delle locazioni
- CHF 2’430
Dettagli immobile
- Disponibile dal
- 01.07.2024
- Superficie abitabile
- 62 m²
- Superficie utilizzabile
- 62 m²



