Spazio di archiviazione in affitto - Au Voyeboeuf 13, 2900 Porrentruy
Perché amerai questa proprietà
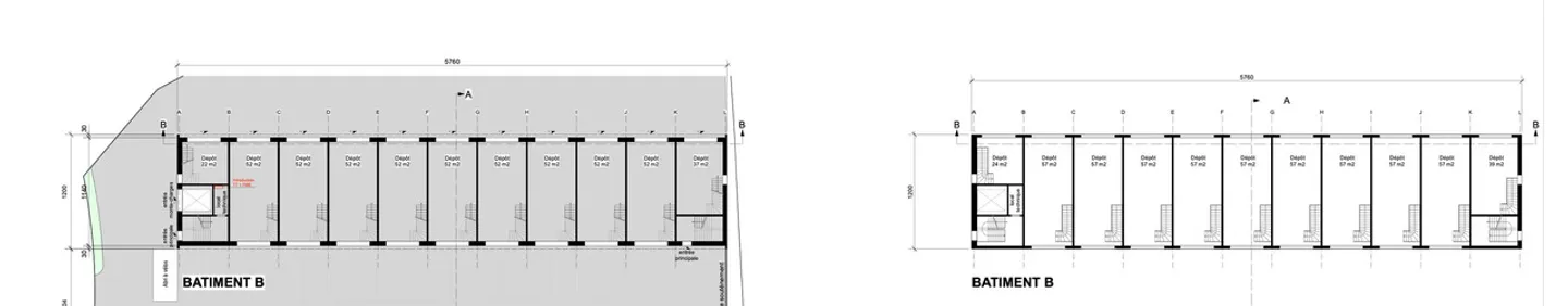
Spazi flessibili da 22m²
Posizione strategica vicino autostrada
Personalizzabile per varie esigenze
Organizza una visita
Prenota una visita oggi!
Spazi artigianali modulari a porrentruy - da 22m² a 527m² a terra
Spazi artigianali modulari a Porrentruy - Da 22m² a 527m² a terra
Sei un imprenditore, artigiano o privato alla ricerca di uno spazio flessibile e strategico per sviluppare la tua attività? Lo Spazio Voyeboeuf a Porrentruy è la soluzione ideale per le tue esigenze. Che si tratti di piccole o grandi imprese, i nostri locali artigianali modulari si adattano a tutte le ambizioni, dall'officina alla fabbrica, passando per uffici o spazi di stoccaggio.
Superfici adattate alle tue esigenze:
• 9 Unità...
Dettagli immobile
- Disponibile dal
- Su accordo
- Anno di costruzione
- 2025



