Spazio ufficio in affitto - Angensteinerstrasse 13, 4153 Reinach BL
-1° piano
CHF 1’100
-
Perché amerai questa proprietà
Stanze luminose
Pavimento in moquette accogliente
Accesso comodo al WC
Organizza una visita
Prenota una visita oggi!
ALFRED GSCHWIND ARCHITEKT AG
Questa descrizione è stata tradotta automaticamente da Tedesco.
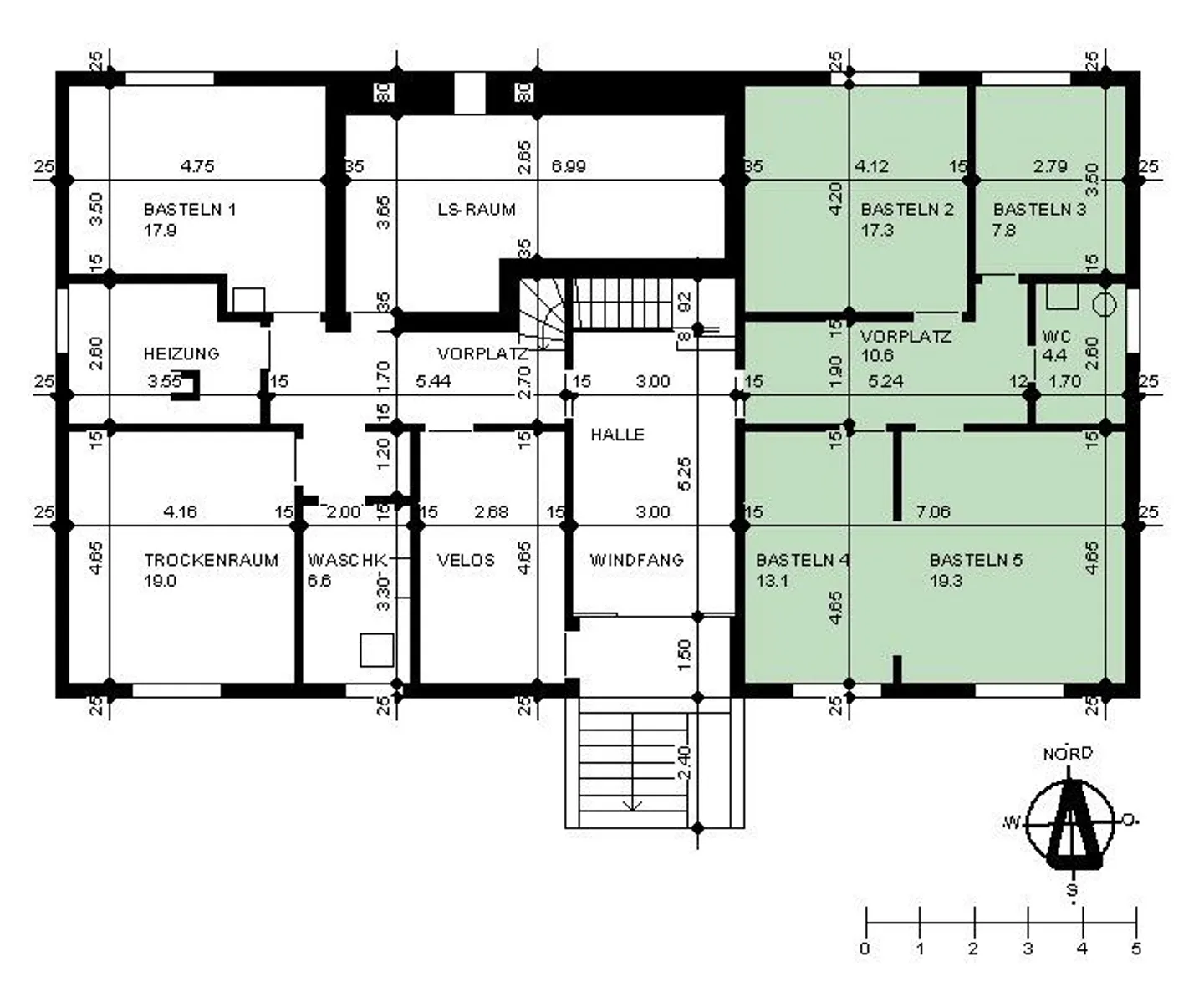
4 stanze atelier/ufficio ug
4 stanze studio/ufficio con seminterrato, con luce naturale
Superficie utile: netto 75 m²
Espansione: WC
Edificio: Piccolo condominio con 7 appartamenti, anno di costruzione 1971
Ripartizione dei costi
- Affitto netto
- CHF 1’100
- Costi aggiuntivi
- CHF 200
- Totale delle locazioni
- CHF 1’100
Dettagli immobile
- Disponibile dal
- Su accordo
Agenzia
ALFRED GSCHWIND ARCHITEKT AG
Indirizzo:Therwil, Mittlerer Kreis, 4106
Online da
10/11/2025
18 ore fa
Località
Angensteinerstrasse 13, 4153 Reinach BL



