Proprietà industriale in affitto - 1227 Carouge GE
Perché amerai questa proprietà
Posizione centrale
Accesso camion
Altezza soffitto fino a 4m
Organizza una visita
Prenota una visita con Picque oggi!
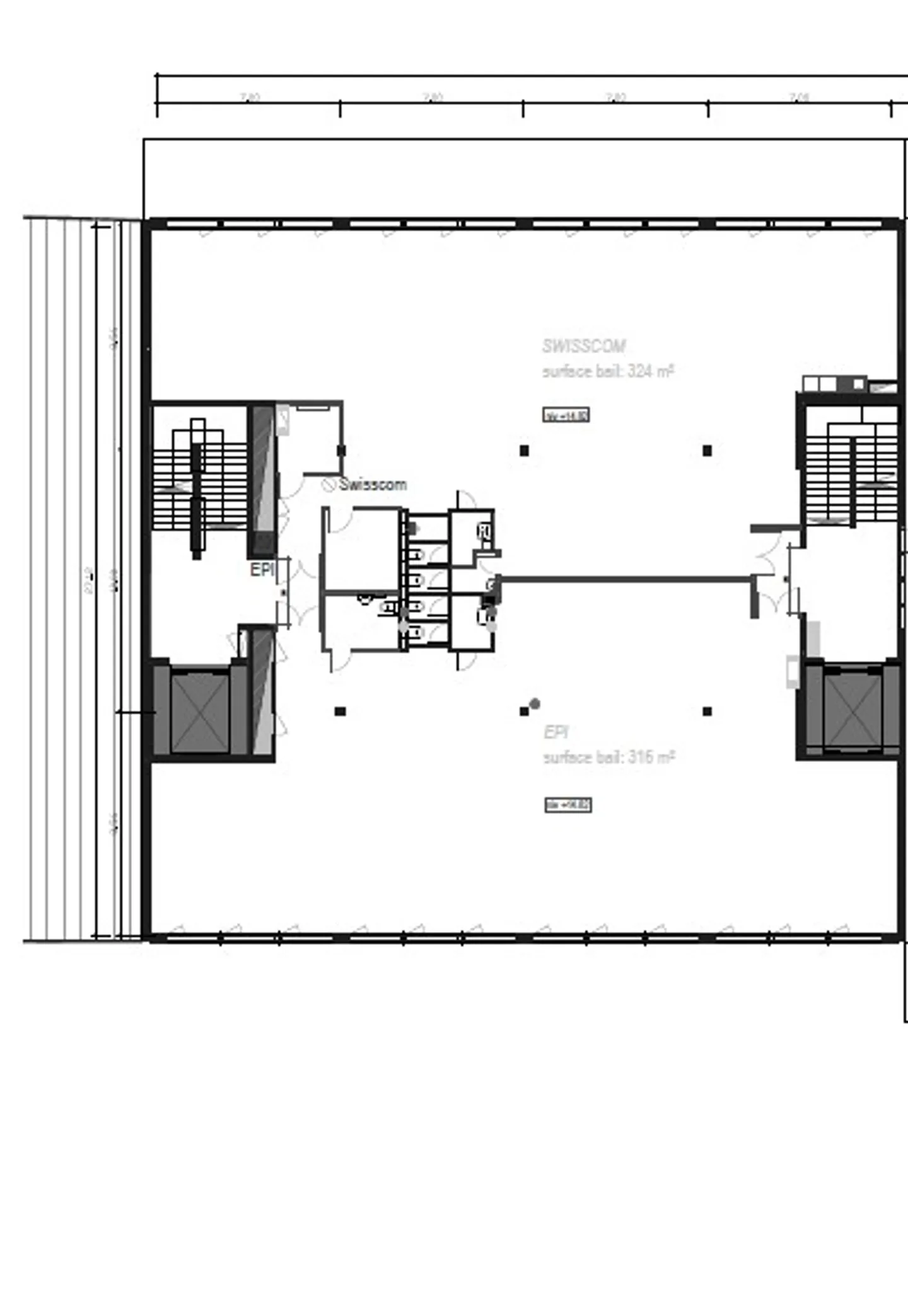
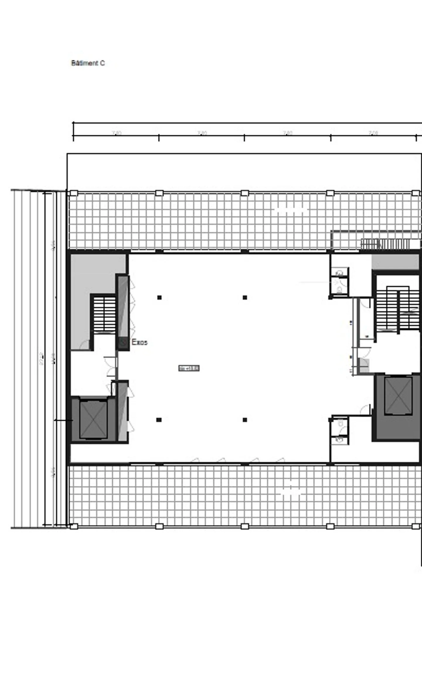
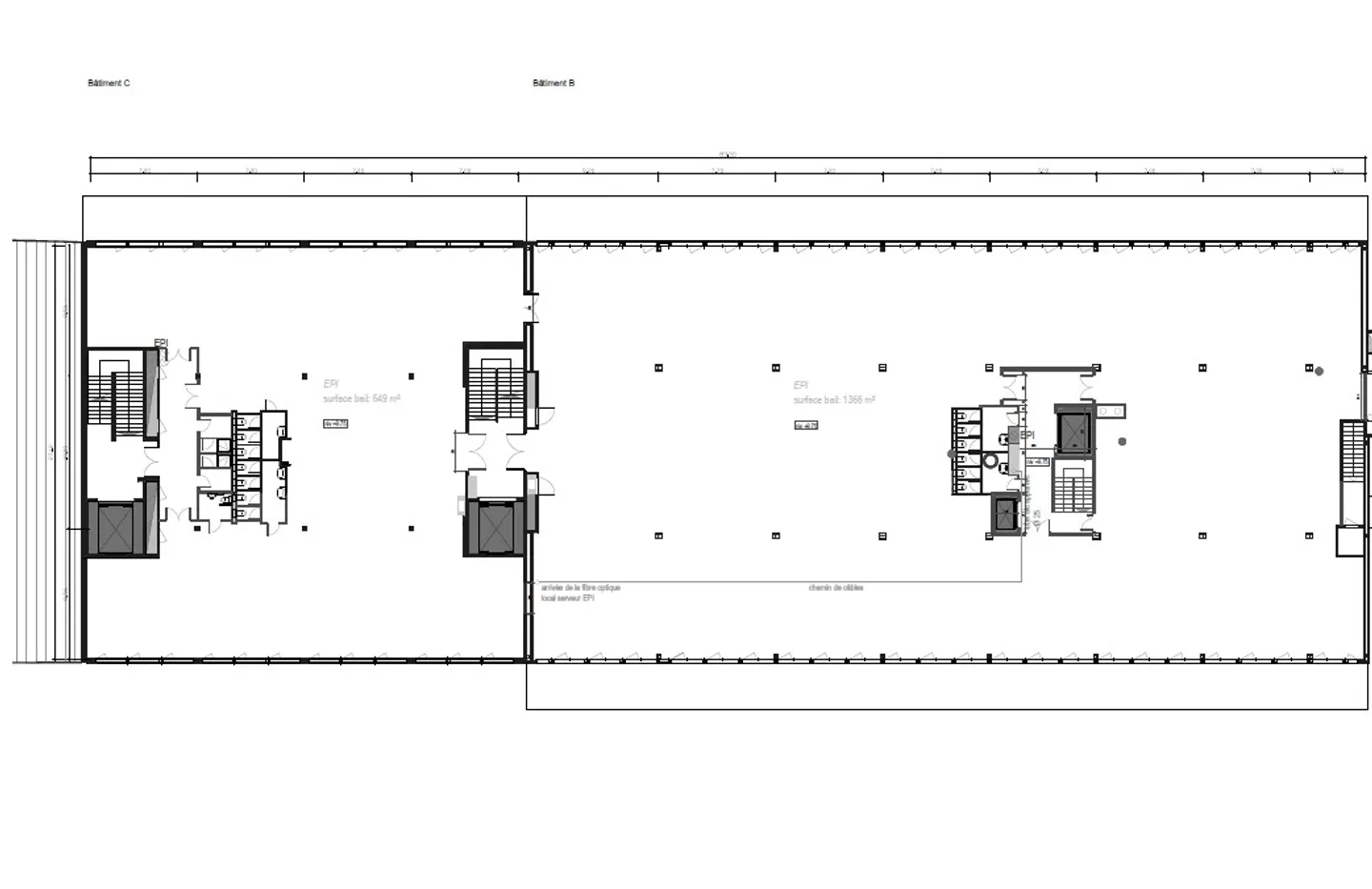
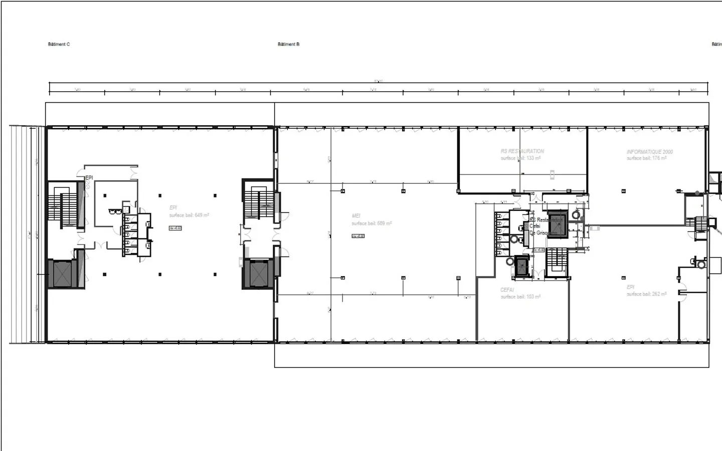
Spazi industriali/uffici in affitto - Carouge (quartiere Stade) - Da 103 m2
Edificio industriale, quartiere centrale, accesso per camion e locali già allestiti.
Costo: CHF 20.-/m2/anno
Punti salienti:
Divisibile da 103 m2
Locali allestiti
Banchine
Carrello elevatore (3T2)
Ascensore
Accesso per camion
Caratteristiche tecniche:
Capacità di carico del pavimento: 700 kg/m2
Altezza del soffitto: da 3,5 m a 4m
Sprinkler
Perché CBRE?
Analisi dettagliata delle vostre esigenze
Confronto degli spazi disponibili
Accesso a opportunità fuori mercato
Supporto durante la negoziaz...
Ripartizione dei costi
- Affitto netto
- CHF 6'750
- Costi aggiuntivi
- CHF 20
- Totale delle locazioni
- CHF 6'750
Dettagli immobile
- Disponibile dal
- Su accordo
- Superficie abitabile
- 300 m²
- Superficie utilizzabile
- 300 m²



