Spazio ufficio in affitto - 1219 Châtelaine
Perché amerai questa proprietà
Layout uffici flessibili
Opzioni Plug & Play
Eccellente accessibilità
Organizza una visita
Prenota una visita con Klaus oggi!
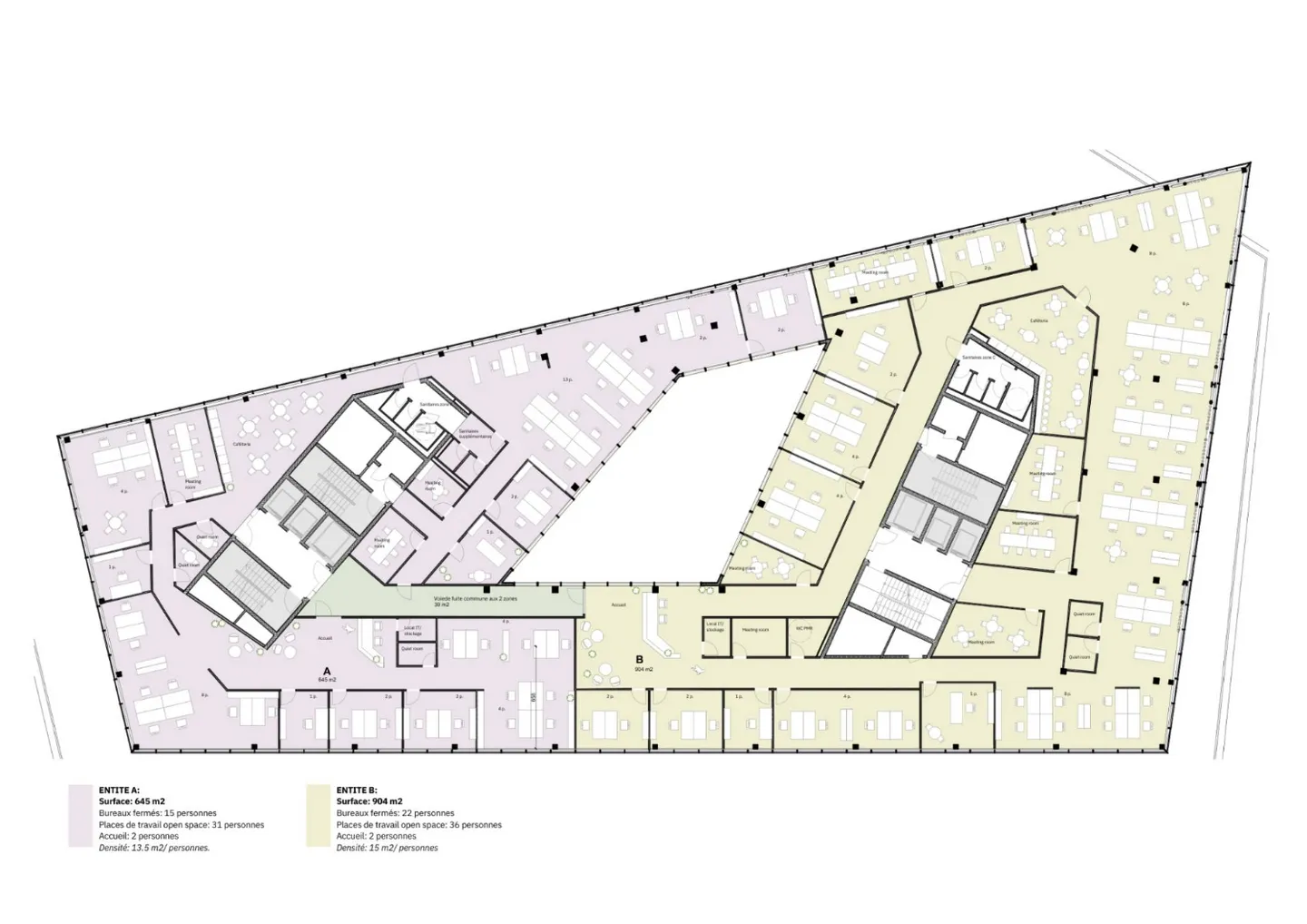
Uffici di classe superiore nel cuore del Quartier de l'Étang fino a 1.600 m² divisibili
Situato nel cuore del Quartier de l'Étang, una posizione commerciale dinamica e sostenibile, Le Belvédère si presenta come l'edificio più magnifico del complesso. Ospita, tra l'altro, la sede centrale della Banca Rothschild, il che sottolinea la sua posizione istituzionale e premium.
Offriamo uno spazio ufficio di circa 1'600 m² in affitto, completamente divisibile e che offre grande flessibilità nella progettazione degli spazi e attrezzature di alta qualità.
Aree disponibili:
- Area A: 414 m²
- A...
Dettagli immobile
- Disponibile dal
- Su accordo
- Superficie abitabile
- 1600 m²
- Superficie utilizzabile
- 1600 m²



