Spazio ufficio in affitto - Rue De Lyon 12, 1201 Genève
Perché amerai questa proprietà
Ampio open space
Cucina funzionale
Ideale per paramedico
Organizza una visita
Prenota una visita con Saulnier oggi!
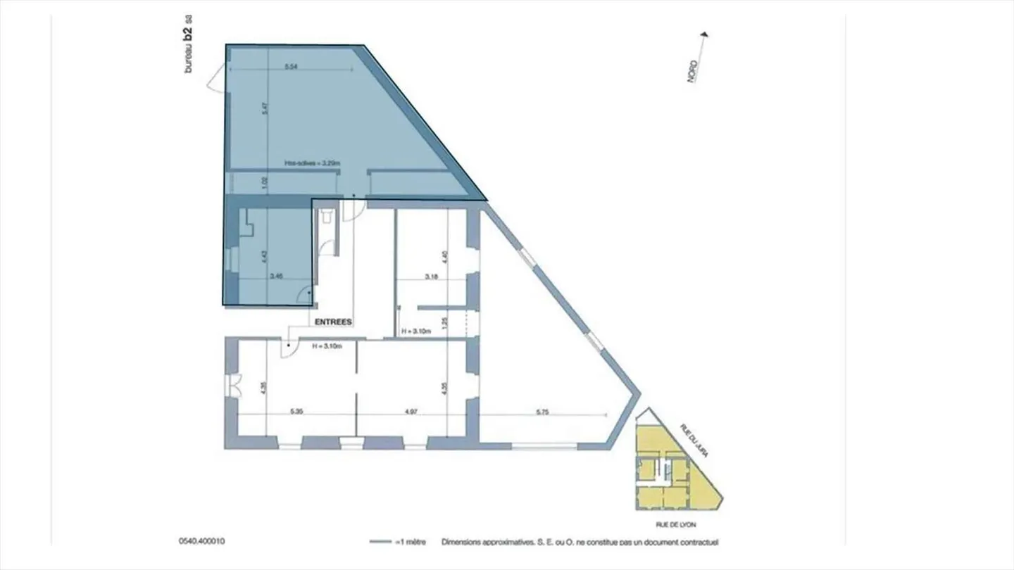
Uffici di 67m2 - vicino alla stazione
Offriamo uno spazio ufficio di 67 m² al piano terra di un edificio residenziale, idealmente situato al 12, rue de Lyon, a solo 9 minuti a piedi dalla stazione ferroviaria di Cornavin.
Il quartiere è dinamico, vicino al centro città e offre un ambiente piacevole e commerciale con un'ottima accessibilità grazie alle numerose linee TPG che si trovano a soli 210 m di distanza (14, 15, 17, 18, 3, A2).
Composizione dello spazio:
1 grande open space
1 angolo cottura - doccia/WC
1 ufficio separato e chi...
Dettagli immobile
- Disponibile dal
- Su accordo
- Superficie abitabile
- 67 m²
- Superficie utilizzabile
- 67 m²



