Spazio ufficio in affitto - Rue De Lyon 12, 1201 Genève
Perché amerai questa proprietà
Posizione centrale e accessibile
Layout funzionale per uffici
Ideale per professioni mediche
Organizza una visita
Prenota una visita con maison.work oggi!
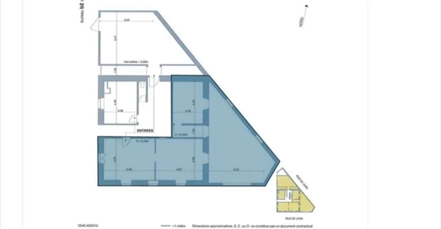
Offriamo uno spazio ufficio di 110 m² situato al piano terra di un edificio residenziale, idealmente posizionato al 12, rue de Lyon, a soli 9 minuti a piedi dalla Stazione Cornavin. Il quartiere è dinamico, vicino al centro città e beneficia di un ambiente piacevole e commerciale, con una molto buona accessibilità grazie alle numerose linee TPG situate a soli 210 m (14, 15, 17, 18, 3, A2). Composizione dello spazio: 3 uffici, uno spazio aperto, 1 sanitario sul pianerottolo. Questo spazio funzion...
Dettagli immobile
- Disponibile dal
- Su accordo
- Superficie abitabile
- 110 m²
- Superficie utilizzabile
- 110 m²



