Commerciale in affitto - Rue De Lyon 12, 1201 Genève
Perché amerai questa proprietà
Posizione dinamica in centro
Ideale per attività mediche
Ottimo accesso ai trasporti
Organizza una visita
Prenota una visita oggi!
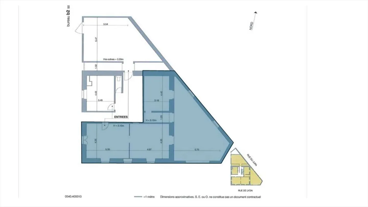
Uffici di 110m2 - vicino alla stazione
Offriamo uno spazio ufficio di 110 m² situato al piano terra di un edificio residenziale, idealmente posizionato al 12, rue de Lyon, a soli 9 minuti a piedi dalla Stazione Cornavin.
Il quartiere è dinamico, vicino al centro città e beneficia di un ambiente piacevole e commerciale, con un'ottima accessibilità grazie alle numerose linee TPG situate a soli 210 m (14, 15, 17, 18, 3, A2).
Composizione dello spazio:
3 uffici
1 open space
1 bagno sul pianerottolo.
Questo spazio funzionale, ben servito,...
Dettagli immobile
- Disponibile dal
- 15.12.2025
- Superficie abitabile
- 110 m²
- Superficie utilizzabile
- 110 m²



