Spazio ufficio in affitto - Gerbergasse 12, 4001 Basel
76 m² • 3° piano
CHF 24
CHF 4 m² / year
Perché amerai questa proprietà
Layout ben progettato
Area terrazza privata
Piccola cucina inclusa
Organizza una visita
Prenota una visita con Livit oggi!
Livit AG
Livit AG
Questa descrizione è stata tradotta automaticamente da Tedesco.
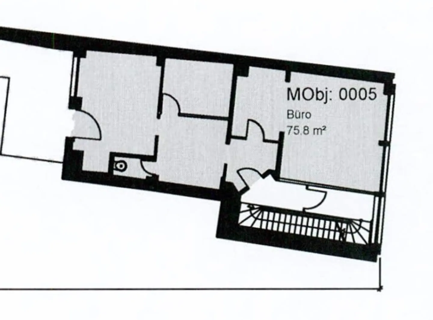
Offriamo uno spazio ufficio rappresentativo di 76 m² in una posizione centrale. I locali sono ben disposti e dispongono di un bagno separato. Ideale per le aziende che cercano un indirizzo centrale a Basilea.
Dati chiave:
- 76 m² di spazio ufficio
- Bagno separato
- Posizione centrale a Basilea
- Piccola cucina
- Terrazza
Attendiamo la vostra richiesta
Dettagli immobile
- Disponibile dal
- Su accordo
- Superficie abitabile
- 76 m²
- Superficie utilizzabile
- 76 m²
Agenzia
Livit AG
Indirizzo:Altstetterstrasse 124, 8048, Zürich
Ref: 1077.01.0302
Online da
28/03/2025
8 mesi fa
Località
Gerbergasse 12, 4001 Basel



