1 / 7

Spazio ufficio in affitto - Blegistrasse 11b, 6340 Baar

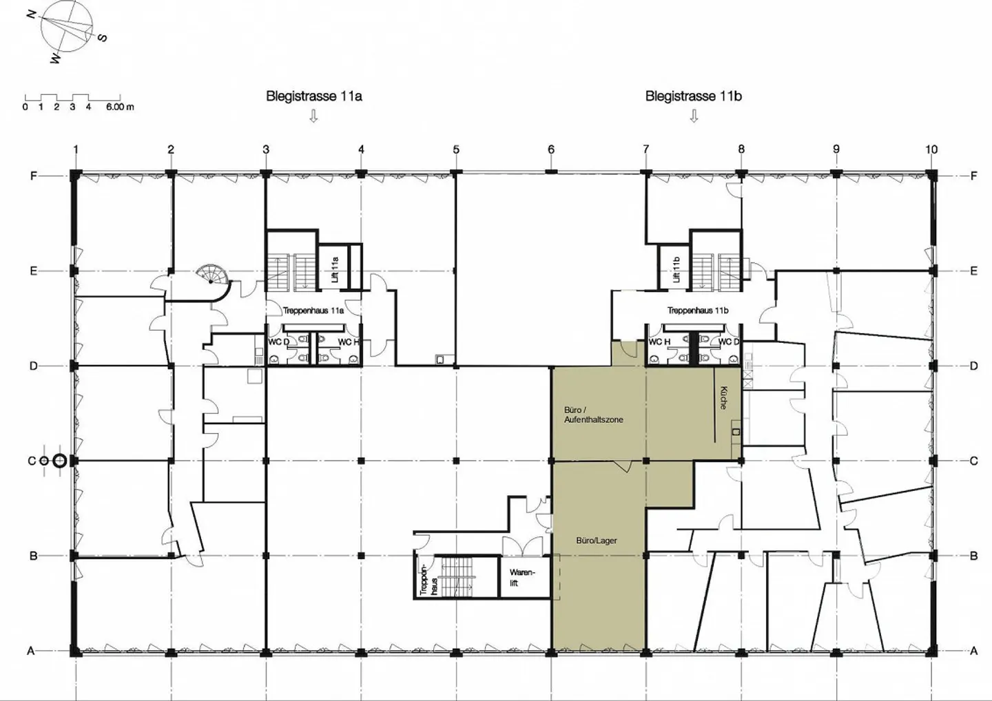
1° piano
CHF 2’255.-
-

Perché amerai questa proprietà

Ottimi collegamenti di trasporto

Accesso diretto alla consegna

Opzioni di ristorazione nelle vicinanze

Organizza una visita

Prenota una visita con Tanja oggi!

Tanja Limacher
Alfred Müller AG
Questa descrizione è stata tradotta automaticamente da Tedesco.

Ufficio ampliato con opzioni di stoccaggio e montacarichi

L'edificio commerciale attraente si trova in una posizione di trasporto eccellente. L'ingresso dell'autostrada verso Zug, Zurigo e Lucerna è facilmente raggiungibile nelle vicinanze.

Diverse opzioni di ristorazione possono essere raggiunte in pochi minuti a piedi.

L'area ha accesso diretto alla rampa di consegna, inclusa una piattaforma di carico.

I tuoi vantaggi a colpo d'occhio

Ufficio ampliato

Posizione favorevole ai trasporti tra i centri economici di Zug e Zurigo

A 2 minuti dal collegamento autos...

Dettagli immobile

Disponibile dal
Su accordo
Anno di ristrutturazione
2017

Caratteristiche

Garage
Parcheggio

Agenzia

Alfred Müller AG
Indirizzo:Baar, Neuhofstrasse 10, 6340
Ref: 3728.3728.3728

Località

Blegistrasse 11b, 6340 Baar

Fonti