Commerciale in affitto - Vorderberg 11, 8044 Zürich
Perché amerai questa proprietà
Posizione eccellente a Fluntern
Trasporti pubblici vicini
Layout flessibile
Organizza una visita
Prenota una visita con Suter oggi!
Lavorare con collegamento
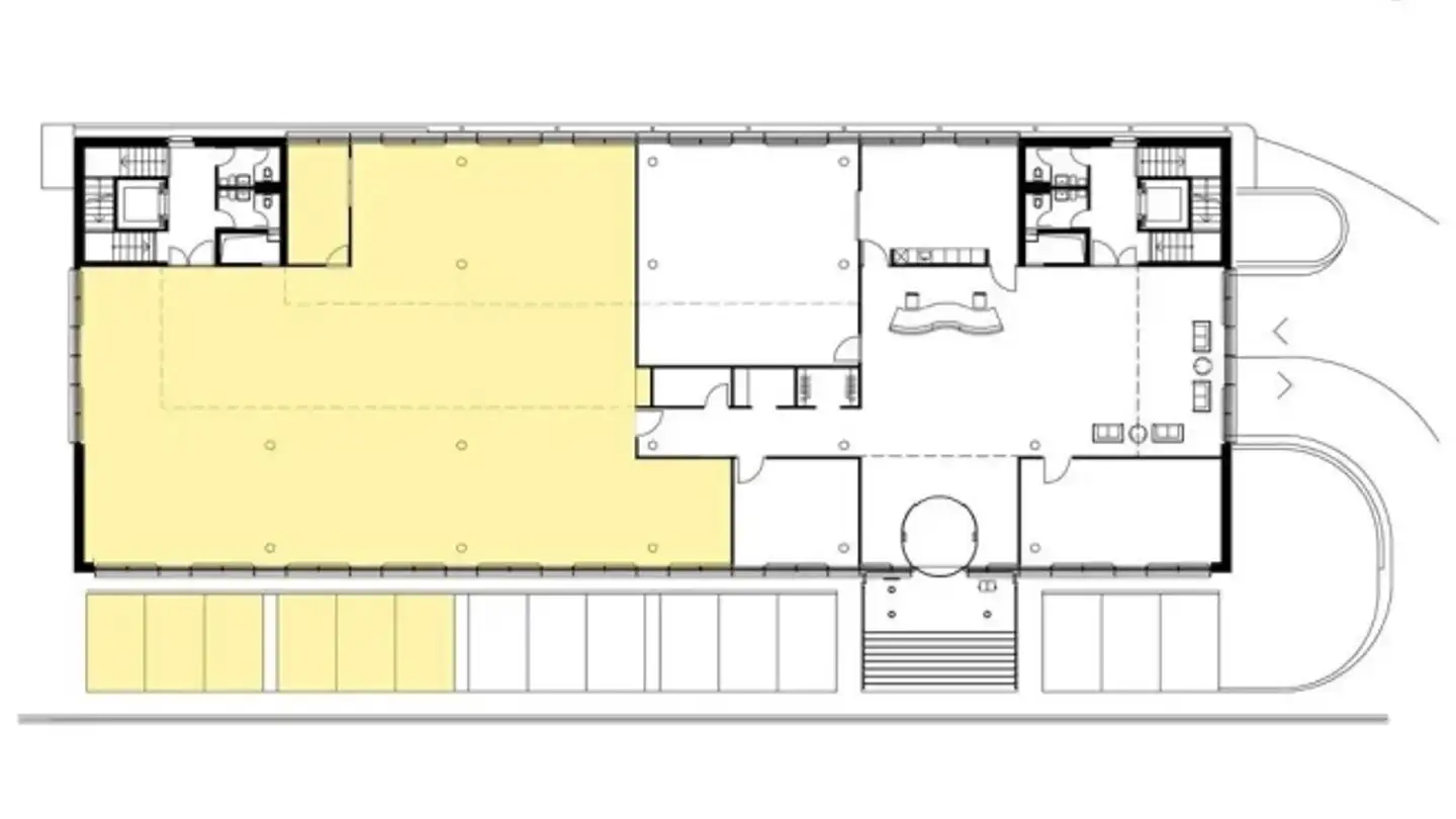
Questo edificio commerciale si trova nel cuore di Fluntern, a Vorderberg, e offre le condizioni ideali per la tua attività.
Approfitta della tua occasione ora e beneficia di vicini ad alto traffico come vari dentisti, un tecnico dentale, una lavanderia, una farmacia, un asilo nido e, infine, una panetteria.
I locali offrono quanto segue:
- Modifica della suddivisione possibile nell'ambito dell'espansione dell'inquilino
- Servizi igienici per uso esclusivo
- Cucina per tè
- Riscaldamento tramite radiat...
Dettagli immobile
- Disponibile dal
- Su accordo
- Anno di costruzione
- 1970



