Commerciale in affitto - Route De La Gare 11, 1165 Allaman
Perché amerai questa proprietà
Vicino a IKEA e autostrada
363m2 di spazio ufficio
Parcheggi disponibili
Organizza una visita
Prenota una visita oggi!
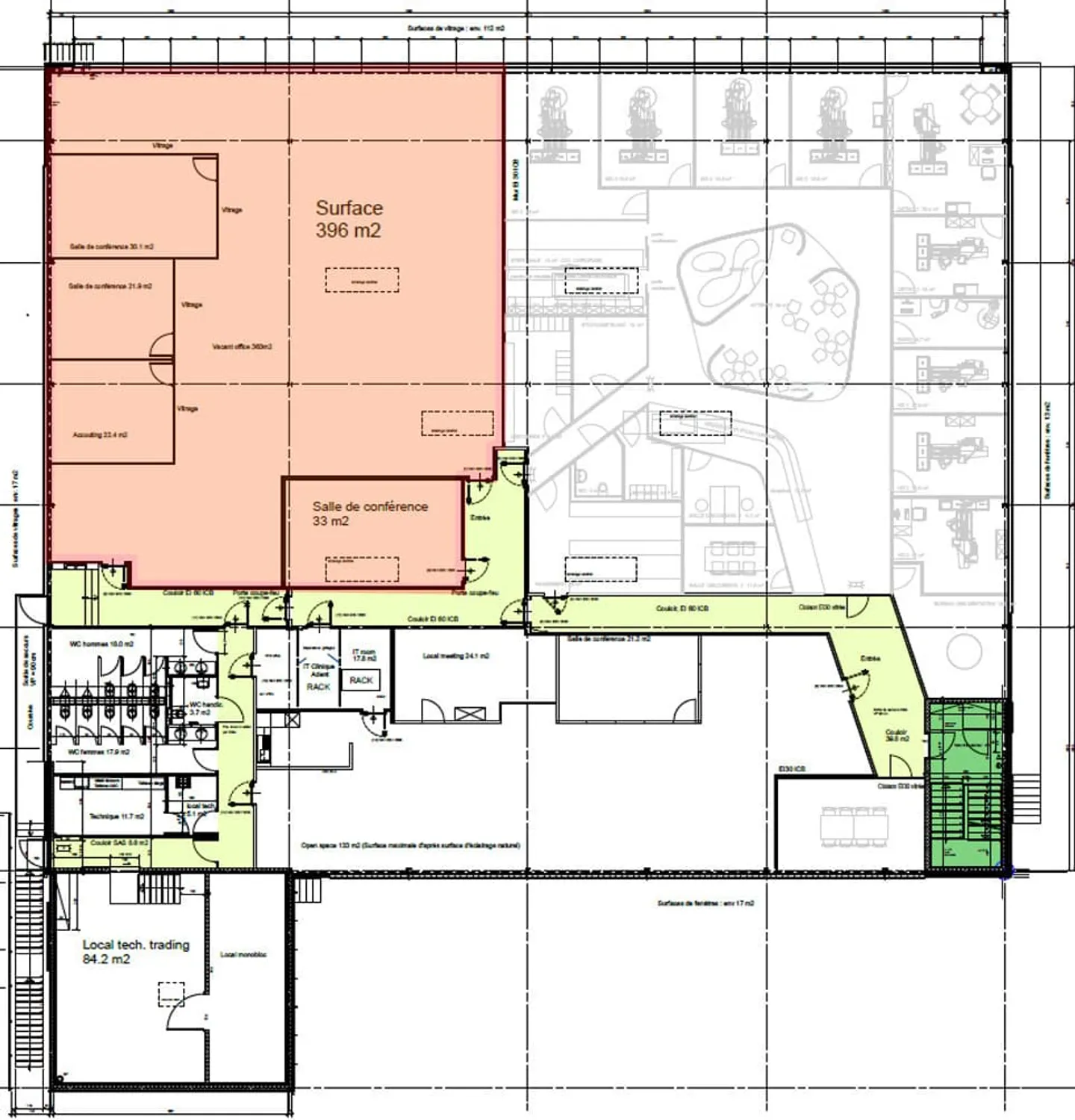
Ufficio di 363 m² nel centro outlet allaman / ikea
Ampia superficie di 363 m² di fronte all'IKEA per uffici/negozi
Disposizione
- Destinazione d'uso: commerciale/ufficio
- Superficie: 396 m²
- Piano: 1° piano del Centro Outlet
- Posti auto
Posizione geografica
- Ottima posizione vicino ai servizi e all'autostrada A1 (5 minuti)
- Di fronte all'IKEA
Disponibilità
- Immediatamente o da concordare
Costo
- Affitto: CHF 155.-/m²/anno
- Spese CHF 50.-/m²/anno
Questo immobile ti interessa o hai domande?
I nostri specialisti sono a tua disposizione e ti risponderanno e...
Dettagli immobile
- Disponibile dal
- 01.01.1970
- Superficie abitabile
- 396 m²
- Superficie utilizzabile
- 396 m²



