1 / 10

Spazio ufficio in affitto - Route De Florissant 10, 1206 Genève

212 m² • 3° piano
CHF 7’245.-
CHF 410 m² / year

Perché amerai questa proprietà

7 uffici individuali

Sala conferenze disponibile

Connessione in fibra ottica

Organizza una visita

Prenota una visita con Khaled oggi!

Khaled GHOULEM
ROSSET & CIE SA
Questa descrizione è stata tradotta automaticamente da Francese.

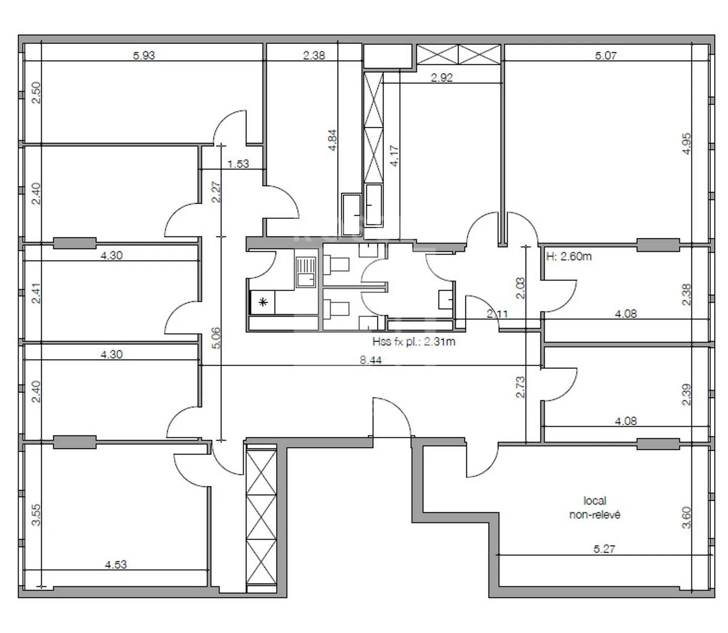
Offriamo in affitto questo spazio di circa 212 m2 situato nel quartiere di Champel. Ideale per un'attività nel settore medico o amministrativo.

Questa superficie è composta da:

- 7 uffici individuali, una sala conferenze, un ripostiglio, una cucina e due servizi igienici. Alcuni uffici sono dotati di punti d'acqua.

- Posto auto disponibile a CHF 250.-/mese/posto

- Fibra ottica

Dettagli immobile

Disponibile dal
Su accordo
Superficie abitabile
212

Agenzia

ROSSET & CIE SA
Indirizzo:Route de Chancy 85, 1213, Onex
Ref: mig-118-4746027

Località

Route De Florissant 10, 1206 Genève

Fonti