1 / 10

Spazio ufficio in affitto - Neuhofstrasse 10, 6340 Baar

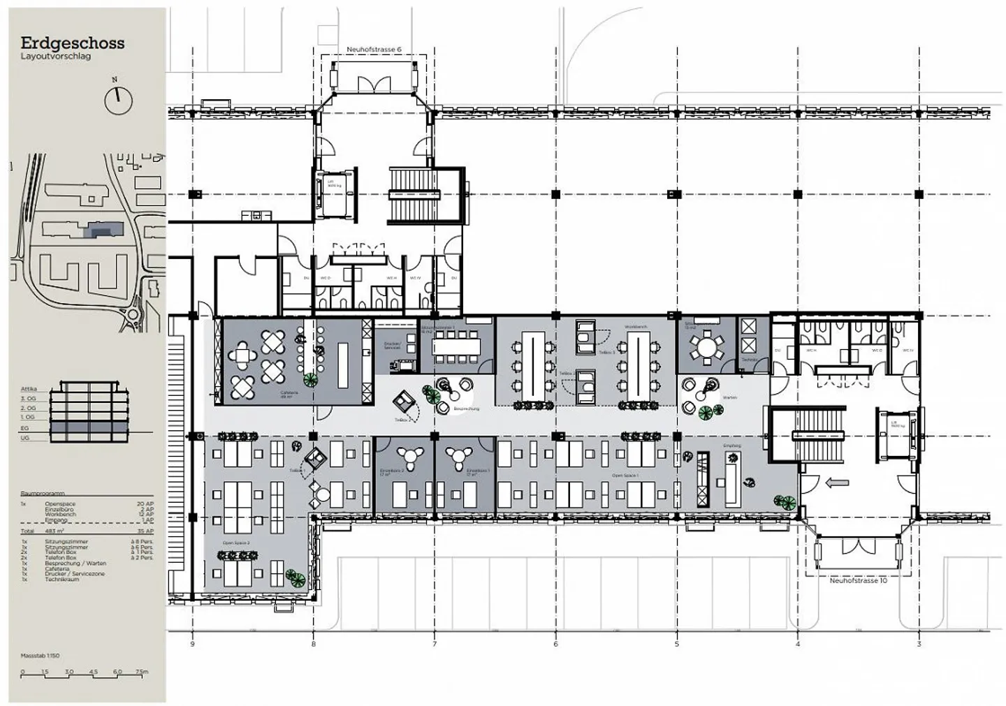
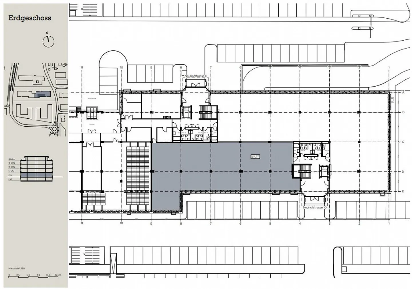
Piano terra
CHF 8’654.-
-

Perché amerai questa proprietà

Alta efficienza energetica

Progettazione flessibile per inquilini

Ristorante e sale riunioni in loco

Organizza una visita

Prenota una visita con René oggi!

René Bieri
Alfred Müller AG
Questa descrizione è stata tradotta automaticamente da Tedesco.

Nuovi e moderni spazi per uffici - 800 metri dall'autostrada - rivitalizzato...

L'edificio per uffici costruito nel 1989 in Neuhofstrasse 6/10 a Baar, con la sua distintiva facciata in metallo bronzo, sta subendo una completa ristrutturazione interna.

Le innovazioni includono la modernizzazione completa degli ingressi, delle scale e delle strutture sanitarie. Inoltre, vengono create toilette per disabili senza barriere e ampi spogliatoi e docce - ideali per i dipendenti attivi.

L'edificio impressiona per l'alta efficienza energetica, ottenuta grazie a una pompa di calore geot...

Dettagli immobile

Disponibile dal
Su accordo
Anno di costruzione
1989
Anno di ristrutturazione
2025

Caratteristiche

Garage
Parcheggio
Ascensore
Accessibile ai disabili

Agenzia

Alfred Müller AG
Indirizzo:Baar, Neuhofstrasse 10, 6340
Ref: 1723.483m² im EG.reb

Località

Neuhofstrasse 10, 6340 Baar

Fonti