1 / 13

Commerciale in affitto - Hohenrainstrasse 10, 4133 Pratteln

455 m² • Piano terra
CHF 6’067.-
CHF 160 m² / year

Perché amerai questa proprietà

Eccellenti collegamenti

Ampio spazio ufficio

Ambiente di lavoro luminoso

Organizza una visita

Prenota una visita con Miroslav oggi!

Miroslav Radojkovic
Buss Immobilien und Service AG
Questa descrizione è stata tradotta automaticamente da Tedesco.

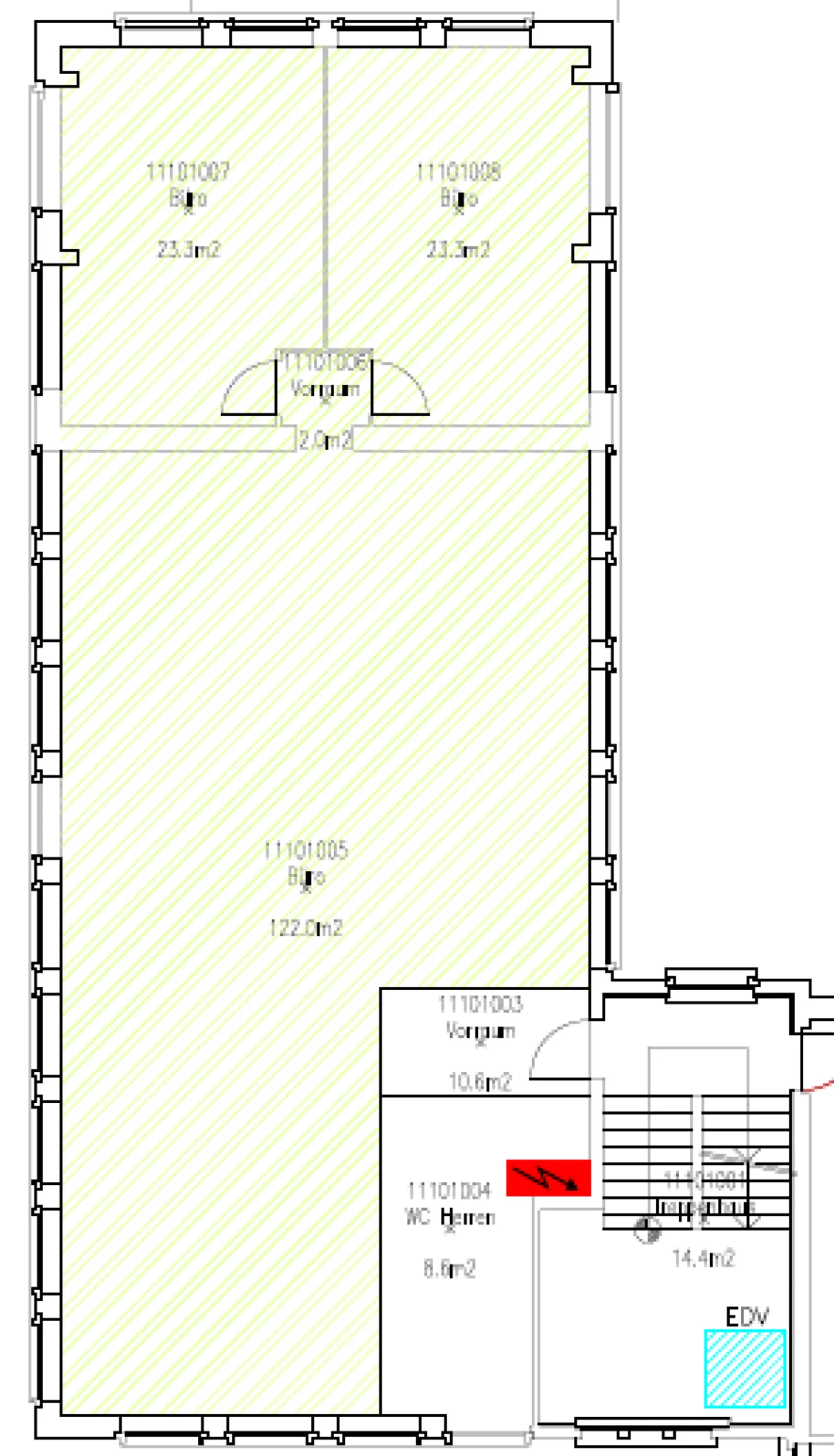
Spazio ufficio e magazzino attraente in affitto

Spazio ufficio e magazzino attraente in affitto a Pratteln

Offriamo uno spazio ufficio e magazzino generoso e versatile in affitto. La proprietà comprende un totale di circa 455 m², di cui circa 340 m² sono spazi per uffici (CHF 180.-/m²/anno) e circa 115 m² sono spazi per magazzino (CHF 120.-/m²/anno). Grazie alle sue opzioni di design flessibili, è ideale per le aziende che desiderano combinare capacità di ufficio e magazzino in un'unica posizione.

Punti salienti della proprietà:

* Eccellenti col...

Dettagli immobile

Disponibile dal
01.05.2025
Anno di costruzione
1942
Superficie abitabile
455
Superficie utilizzabile
455

Caratteristiche

Parcheggio
Tour virtuale

Agenzia

Buss Immobilien und Service AG
Indirizzo:Hohenrainstrasse 10, 4133, Pratteln
Miroslav Radojkovic
Ref: 60121.02.0002

Località

Hohenrainstrasse 10, 4133 Pratteln

Fonti