Commerciale in affitto - Werner-Kälin-Strasse 1, 8840 Einsiedeln
Perché amerai questa proprietà
Posizione ad alto traffico
Magazzino spazioso incluso
Design moderno del 2019
Organizza una visita
Prenota una visita con Emma oggi!
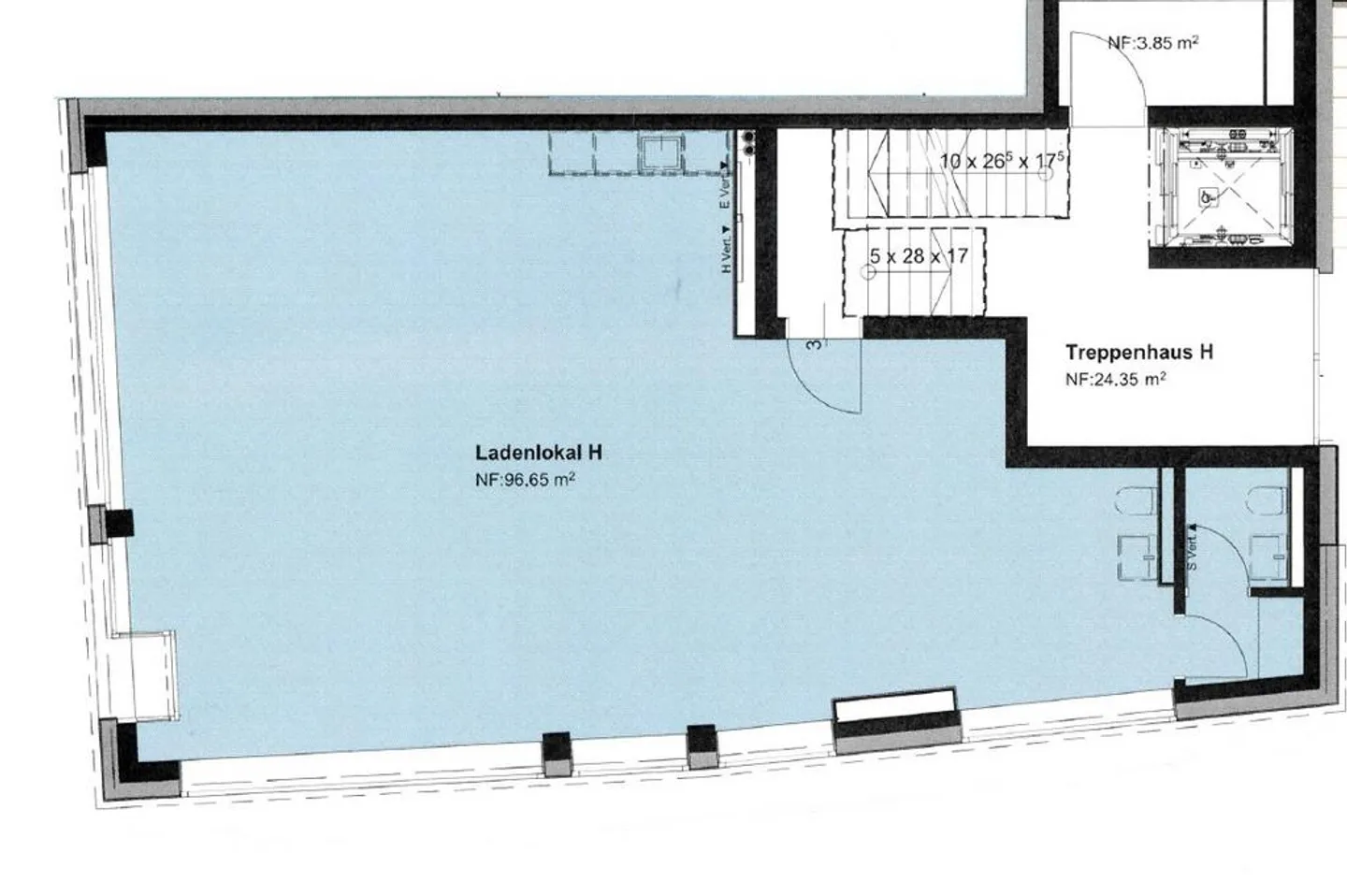
Spazio commerciale attraente nel cuore di einsiedeln in affitto
Stai cercando uno spazio commerciale/caffè situato nel centro di Einsiedeln? Allora questa proprietà potrebbe essere proprio quella giusta per te!
Dal 01.02.2026 affittiamo uno spazio commerciale/caffè affascinante in una posizione ideale. La strada è molto frequentata ed è particolarmente popolare tra i turisti. Pertanto, la posizione è ideale per presentare al meglio la tua attività.
La proprietà Augustiner è stata costruita nel 2019. Lo spazio commerciale/caffè si trova al piano terra e ti offr...
Ripartizione dei costi
- Affitto netto
- CHF 2’600
- Costi aggiuntivi
- CHF 300
- Totale delle locazioni
- CHF 2’600
Dettagli immobile
- Disponibile dal
- Su accordo
- Anno di costruzione
- 2019



