Commerciale in affitto - Keltenstrasse 1, 2563 Ipsach
Perché amerai questa proprietà
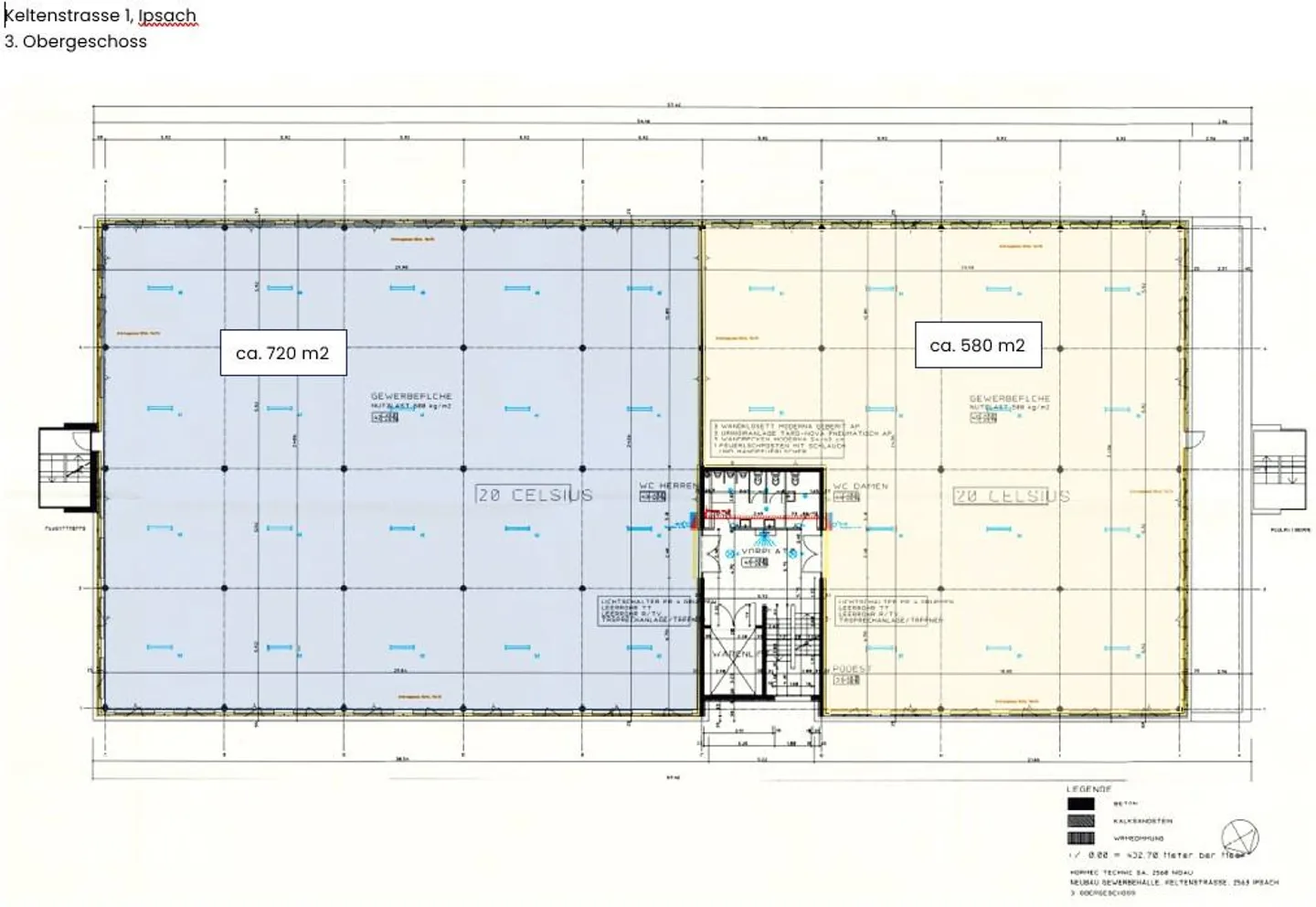
Area luminosa e spaziosa
Capacità di carico di 500 kg/m²
Vicino ai mezzi pubblici
Organizza una visita
Prenota una visita con Backoffice oggi!
Spazio commerciale versatile di circa 360 m2
Ab sofort vermieten wir eine helle, attraktive Gewerbefläche im Industriegebiet
welche vielseitig genutz weden kann.
Ideal z.B. für:
- Praxis (Massage, Physioterapie)
- Büros
- Fabriaktion / Werkstatt
- Verkaufs-/Ausstellungsfläche
Die Fläche zeichnet sich aus durch:
- Bodenbelastbarkeit 500 kg / m2
- Raumhöhe 3 Meter
- Bodenbeläge: Industrieboden
- viel Tageslicht
- Mitbenutzung der Toilettenanlagen
- Nähe ÖV (BTI-Bahn)
Parkplätze (Einstellhallen- und/oder Aussenparkplätze) können separat dazugemietet...
Ripartizione dei costi
- Affitto netto
- CHF 4’570
- Costi aggiuntivi
- CHF 450
- Totale delle locazioni
- CHF 4’570
Dettagli immobile
- Disponibile dal
- 01.12.2025



