Commerciale in affitto - Honeywell-Platz 1, 8157 Dielsdorf
Perché amerai questa proprietà
Pavimento industriale robusto
Accesso diretto con montacarichi
Circondato da negozi e ristoranti
Organizza una visita
Prenota una visita con Selene oggi!
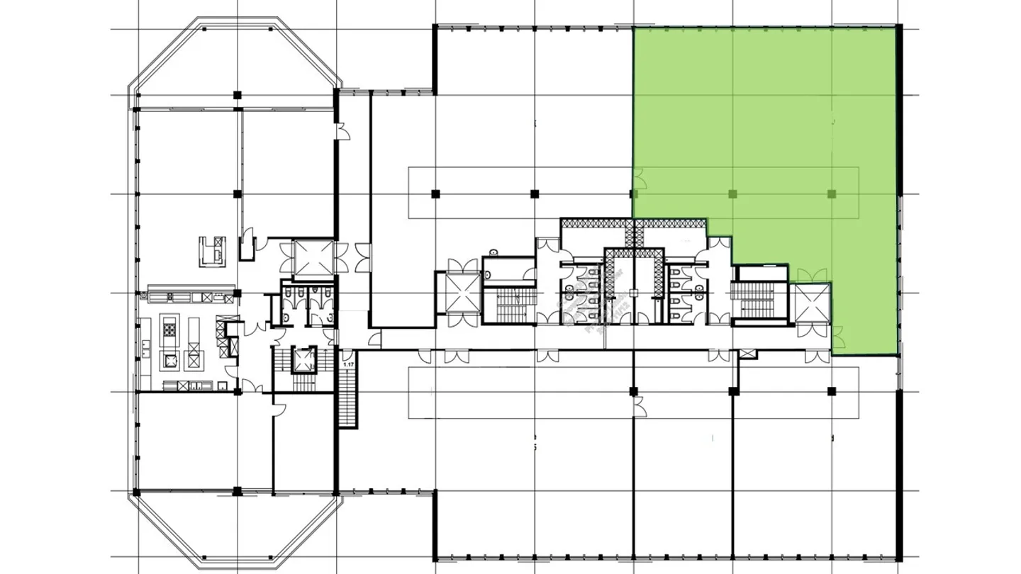
365 m2 di spazi commerciali con montacarichi e capacità di carico di 1.300 kg/m²
Presso Honeywellplatz 1 a Dielsdorf, hai accesso a spazi commerciali sviluppati che sono ideali per l'industria leggera, la movimentazione delle merci o i posti di lavoro in ufficio. Le stanze offrono condizioni ottimali per la tua azienda grazie all'accesso diretto con un montacarichi e un'alta capacità di carico di 1.300 kg/m². I tuoi vantaggi a colpo d'occhio:
* Pavimento industriale: Pavimento robusto e durevole
* Montacarichi e infrastruttura: Accesso diretto alla proprietà
* Dintorni: Circond...
Dettagli immobile
- Disponibile dal
- Su accordo
- Anno di costruzione
- 2001
- Anno di ristrutturazione
- 2024
- Superficie abitabile
- 365 m²
- Superficie utilizzabile
- 365 m²



