Spazio ufficio in affitto - Goethestrasse 1, 8712 Stäfa
Perché amerai questa proprietà
Fascino di un edificio storico
Opzioni di utilizzo flessibili
Accesso ai trasporti comodo
Organizza una visita
Prenota una visita oggi!
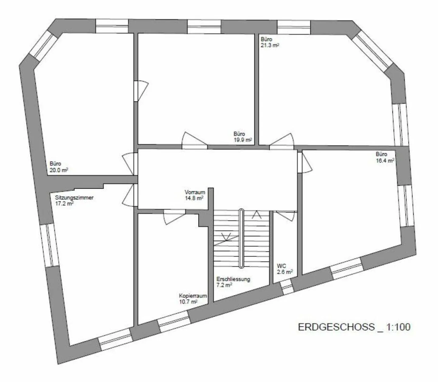
Spazio commerciale con opzioni di utilizzo versatili nel centro di stäfa ...
Stai cercando spazi per uffici situati in posizione centrale?
Abbiamo i locali per le tue idee imprenditoriali. Realizza i tuoi sogni di avere la tua attività. Che si tratti di uno studio di progettazione per architetti, ingegneri, studi legali, ecc., o di spazi per fisioterapia, massaggi o per il settore della cosmetica. O vuoi avviare qualcos'altro? Presentaci il tuo progetto.
Questi spazi commerciali versatili aspettano di essere occupati e utilizzati da te.
I locali si trovano al 1° piano (pian...
Dettagli immobile
- Disponibile dal
- Su accordo
- Anno di costruzione
- 1899



