1 / 9

Spazio ufficio in affitto - Bruggmatt 1, 6130 Willisau

1° piano
CHF 500.-
-

Perché amerai questa proprietà

Edificio moderno

Sala riunioni condivisa

Sistema di ventilazione controllata

Organizza una visita

Prenota una visita con Toni oggi!

Toni Schenker
Imovera AG
Questa descrizione è stata tradotta automaticamente da Tedesco.

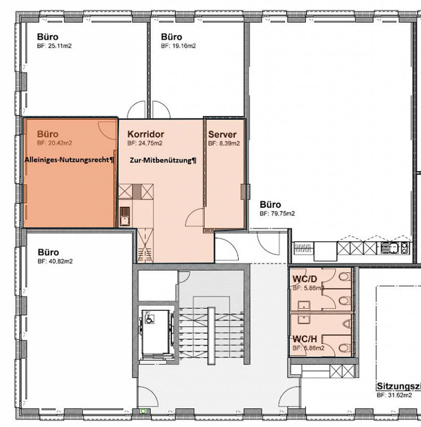
Posizione centrale per uffici e studi terapeutici

Nella migliore posizione a Willisau, spazio commerciale ideale come ufficio o sala terapia nella comunità di uffici esistente al 1° piano.

Per uso esclusivo:

Spazio ufficio secondo piano

Per uso condiviso:

Reception

Sala materiale/server

WC

L'edificio commerciale rappresentativo ha una buona frequenza di passanti e appare moderno e contemporaneo.

Moquette con pavimento doppio coperto.

Posti auto all'aperto per i clienti e una sala riunioni condivisa al 1° piano con la tecnologia più recente per videoconf...

Dettagli immobile

Disponibile dal
Su accordo
Anno di costruzione
2010

Caratteristiche

Ascensore
Accessibile ai disabili

Agenzia

Imovera AG
Indirizzo:Willisau, Rossgassmoos 1, 6130
Ref: 302.12.102
Online da
05/09/2025
un mese fa

Località

Bruggmatt 1, 6130 Willisau

Fonti